Plot 24 The Sarratt
Croxley Green, Rickmansworth, WD3 3JJ Directions and opening times
- £1,075,000
-  
            4bedrooms
-  
            2bathrooms
Millside Grange Plot 24 - The Sarratt
- Price:
                  £1,075,000
- Bedrooms:
            4
- Bathrooms:
            2
- Directions and opening times
 
Created for Living
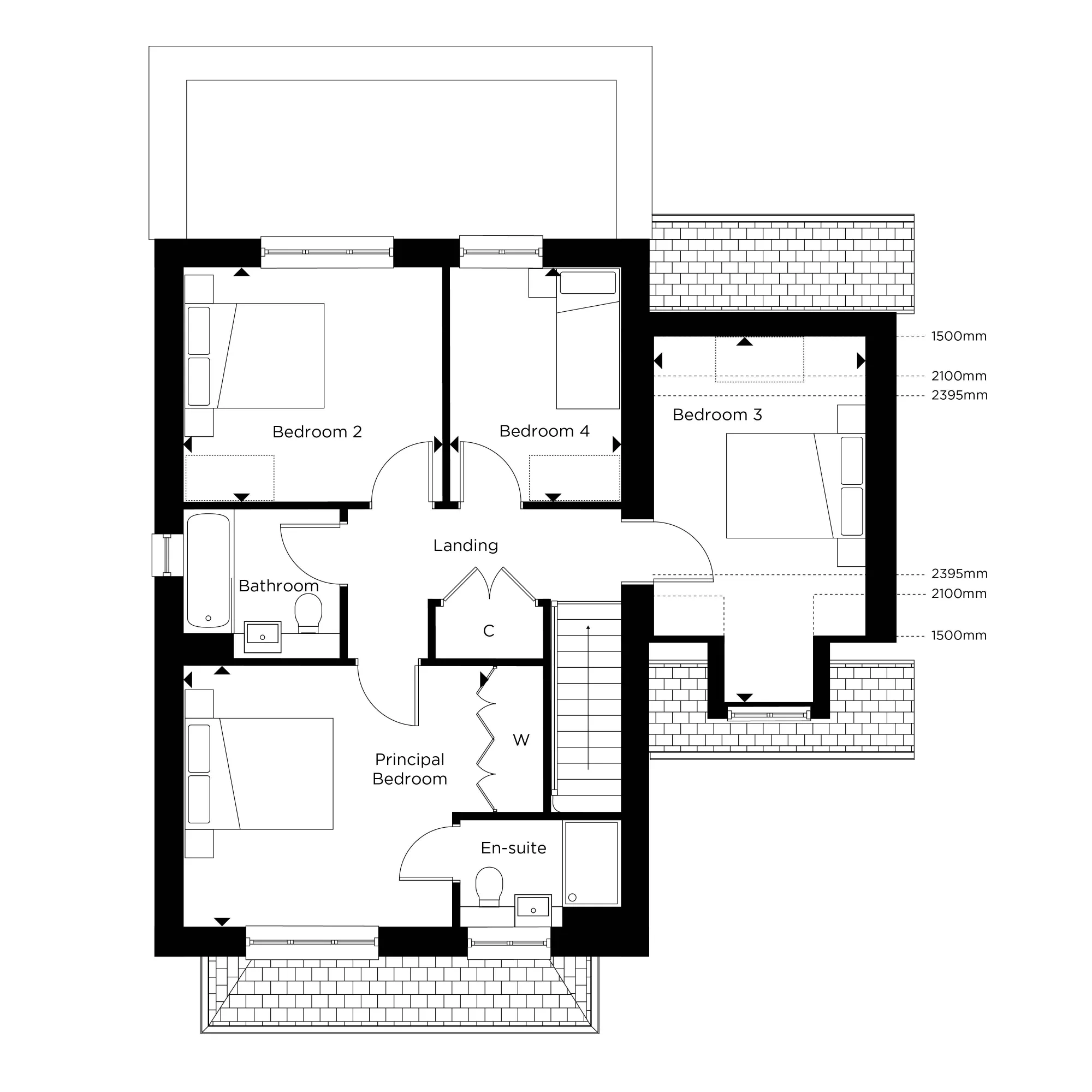
The Sarratt is a four bedroom detached home with private rear garden, with single garage and a driveway parking space for one car
Make your dream move to Millside Grange easier with Part Exchange* - Speak to the sales team today to find out more!
The Sarratt, Plot 24 showcases quality, contemporary design and convenience. This exceptional four bedroom family home gives you every you will need, complete with a spacious open-plan kitchen/living/dining area with bi-fold doors leading to a private landscaped rear garden. The kitchen has been specified with a timeless design, featuring matt finish shaker-style units with soft close doors and drawers finished with a Caesarstone worktop and fully integrated appliances. You'll also find a utility room, separate living room with bay window and WC to the ground floor, with beautiful Amtico flooring running throughout the main living spaces, and tiling to the bathroom. 
The four spacious bedrooms feature plush carpet offering ultimate comfort. The principal bedroom features an elegant en-suite and fitted wardrobe, the ideal space for your fashionable items. The contemporary bathroom comes complete with modern sanitaryware, feature LED lighting to the mirrored cabinet, matching bath panel and vanity top to give a touch of elegance and style.
Outside, you'll find a beautiful large landscaped garden, for all of the family to enjoy. This home also comes complete with a single garage and a private driveway offering space for one car.
Overview of key information
Please note council tax bands are often not released by the local authority until the property is complete, further information will be provided once available.
- Tenure: Freehold
- Council Tax Band: TBC
- Estate Charge: £270
- Estate Charge Review Period: Annual
External image is of The Sarratt housetype. Internal images are of the showhome, individual layout and specification may vary. *Available only on selected properties. Your existing home must be no more than 60% of the value of the new home you are purchasing. Not all properties can be considered for Part Exchange. Offers will be subject to RICS valuation and contract. For full terms and conditions and eligibility criteria, please speak to a member of our sales team.
Features
- Impressive open-plan living space with bi-fold doors 
- Fully integrated kitchen complete with adjacent utility room 
- Separate living room to front of the property with bay window 
- Principal bedroom with elegant en-suite and fitted wardrobe 
- Single garage with driveway parking for one car 
- Large private landscaped rear garden 
- Anticipated completion Dec 23/ Jan 24 
- 10 Year NHBC Warranty 
- Approx. 1508 sq ft 
- :
- :
- :
- :
- :
 
 
- 
                Available 
- 
                Reserved 
- 
                Sold 
 
Kitchen & Utility
- Matt finish shaker-style units with soft close doors and drawers
- Caesarstone worktop with matching upstand
- Induction hob with built-in extractor
- Integrated single oven
- Integrated compact combi oven/microwave
- Integrated fridge/freezer
- Integrated dishwasher
- Stainless steel under-mounted sink with contemporary brushed steel mixer tap
- LED feature lighting to wall units
Kitchen designs and layouts vary; please speak to our Sales Executives for further information. We are unable to accommodate any individual changes, additions or amendments to the specification, layout or plans to any individual home. Please note that it may not be possible to obtain the products as referred to in the specification; in such cases, a similar alternative will be provided. Hill reserve the right to make these changes as required.
 
 
 
 
Bathroom & En-suite
- Bath with shower over and glass shower screen or separate shower enclosure
- Low profile shower tray with glass shower door where applicable to bathroom & en-suite
- Bath panel to match vanity top
- Feature mirror cabinet with LED lighting (where layout allows) to bathroom
- Feature mirror cabinet with LED lighting (to principal en-suite only, where layout allows)
- Recessed shower shelf to bathroom & en-suite
- Large format wall and floor tiles to bathroom & en-suite
- Heated chrome towel rail to bathroom & en-suite
 
 
 
 
Heating & Water
- Underfloor heating to ground floor, radiators to upper floor
- Heated chrome towel rails to bathroom and en-suite
- Air source heat pump
 
 
 
 
Electrical
- Downlights to entrance hall, kitchen, open-plan kitchen/living/dining area, bathroom, en-suite, WC, utility room and principal bedroom
- Pendant fittings to landing and bedrooms, separate living room, dining room, study, landing and other bedrooms
- LED feature lighting to wall units in kitchen
- Selected sockets with integrated USP port
- Shaver sockets to bathroom and en-suite
- TV, BT and data points to selected locations
- BT & Hyperoptic fibre connection to all properties for customer’s choice of broadband provider
- Pre-wired for customer’s own Sky Q connection
- External lighting to front and rear of property
- Hard-wired smoke and heat detectors
- Spur for customer’s own installation of security
 alarm panel
- Provision for customer's own electric car
 charging point
- Light and power to garage
 
 
 
 
Finishes
- Timber staircase with carpeted treads and risers
- White painted single panel moulded internal doors with contemporary dual finish ironmongery
- Built in hinged wardrobe or walk-in dressing room with high level shelf, hanging rail and LED lighting to principal bedroom
- Square cut skirting and architrave
- Walls painted in white emulsion
- Smooth ceilings in white emulsion
- Amtico flooring throughout ground floor
- Carpet to stairs, landing and bedrooms
- Large format tiles to bathroom and en-suite
- Composite front door with multi-point locking system
- High-efficiency double-glazed uPVC windows
- Aluminium bi-fold doors, and swing patio doors to match windows where applicable
 
 
 
 
Additional Information
- 10 Year NHBC Warranty
A Management Company has been formed at Millside Grange and will be responsible for the management and maintenance of the shared services and external communal areas of the of the development, including the green open spaces, play areas, un-adopted estate roads and footpaths. All homeowners will automatically be made members of the Management Company when they purchase a home at Millside Grange. A managing agent has been appointed on behalf of the Management Company and will take on the day-to-day management and maintenance responsibilities. All homeowners will be required to pay a contribution towards the maintenance of the development, which will be collected by the managing agent in the form of an annual estate charge.
 
 
 
 
Ways to Buy
Similar Properties
![Millside_Grange216x54px@2x[1].png](/sites/default/files/styles/logo_landscape/public/2024-07/Millside_Grange216x54px%402x%5B1%5D.png?itok=IvkpjsNZ) 
 
 
 
 
 
 
 
 
 
 
 
 
 
 
 
 
 
 
 
 
 
 
 
 
 
 
 
 
 
 
 
 
 
 
 
 
 
 
 
 
 
 
 
 
 
 
 
 
 
 
 
 
 
 
