Apartment M33 Fish Island Village

Wyke Road, London, E3 2PL Directions and opening times

  • £737,500
  • 3
     bedrooms
  • 2
     bathrooms

Fish Island Village Apartment M33

Jump to:

Development Jump Navigation

Image

Created for Living

STAMP DUTY CONTRIBUTION & PARKING* - Stunning three bedroom apartment located on the fifth floor with PRIVATE BALCONY & PARKING INCLUDED. Spacious open-plan living with master bedroom featuring ELEGANT EN-SUITE & FITTED WARDROBE. READY TO MOVE INTO TODAY - 926 SQ FT.

This stunning, fifth floor three bedroom apartment has prime position and gives you everything you might need; with a spacious, combined kitchen, living and dining space with doors leading to a private balcony. The main living area and bedrooms all benefit from canalside views. The master bedroom features a fitted wardrobe and elegant en-suite. You'll also find two additional spacious bedrooms and contemporary family bathroom with modern sanitaryware. Private balcony is accessed from both the main living area and third bedroom, the ideal space to entertain guest or kick your feet up after a long day at work.

Murdoch Building is part of Neptune Walk, our third and final phase of Fish Island Village and consists of one, two and three bedroom apartments benefiting from stunning views over Hertford Union Canal, as well as the access to the open space within the adjacent Smeed Gardens.

Overview of key information about this property and the potential costs for your new home. Apartment M33 is a leasehold property with no ground rent fees. Please note council tax bands are often not released by the local authority until the property is complete, further information will be provided once available.

  • Tenure: Leasehold
  • Lease Length: 250
  • Unexpired lease length: 245
  • Council Tax Band: TBC
  • Service Charge: £3,079
  • Service Charge Review Period: Annual 

*Stamp Duty contribution is subject to terms and conditions, available on single stamp duty only. On reservations made before 31st August 2022. Speak to the Sales Team today for further information.



**Please note: The sales office is now permanently closed. If you wish to view this apartment please book an appointment with the sales team: 02039061950**

 

Features

  • READY TO MOVE INTO

  • Fifth floor - 926 sq ft

  • Open-plan kitchen/living/dining area extending to private balcony

  • Modern kitchen with integrated appliances and solid composite worktops

  • Master bedroom benefits from fitted mirror wardrobe

  • Contemporary bathroom with elegant sanitaryware

  • Excellent transport links to the City

  • Canalside living

:
:
:
:
:
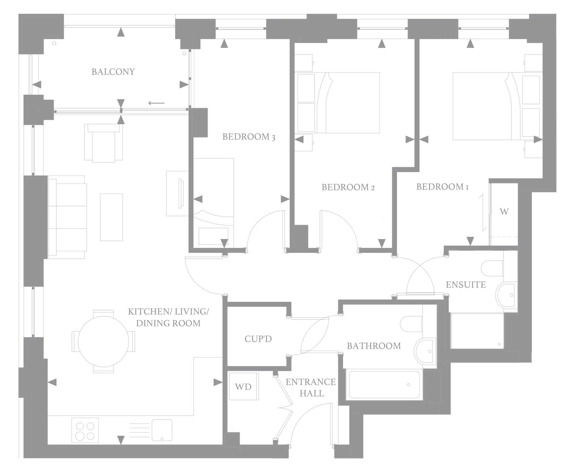
Floor Plans
Apartment M33 Floorplan
Kichen/Living/Dining
7.35m
 x 
3.90m
24'1" x 12'10"
Bedroom
4.60m
 x 
2.75m
15'1" x 9'0"
Bedroom 2
4.65m
 x 
2.70m
15'3" x 8'10"
Bedroom 3
4.65m
 x 
2.15m
15'3" x 7'1"
Balcony
1.80m
 x 
3.50m
5'11" x 11'6"
Image
Site Plan
Specifications

Kitchen

  • Bosch hob with touch control
  • Bosch stainless steel oven
  • Bosch microwave
  • Integrated Zanussi fridge/freezer
  • Integrated Zanussi dishwasher
  • Stainless steel Blanco sink with contemporary Blanco mixer tap
  • Integrated cooker hood
  • LED lighting to wall units
  • Featured lighting to kitchen plinth
  • Stone splashback behind hob
  • Soft close to doors and drawers
  • Zanussi washer/dyer in hallway cupboard 
Image
fish island village living room
Image
fish island village winter garden
Image
fish island village kitchen
Image
fish island village bedroom

Bathroom & En-Suite

  • Duravit sanitary ware
  • Hansgrohe mixer taps and shower
  • Bath with shower above, glass shower screen 
  • Low profile shower tray with glass shower screen (en-suites)
  • Timber effect vanity top and matching bath panel
  • Feature mirror cabinet to all en-suites
  • Large format wall and floor tiles
  • Heated chrome towel rail
  • Underfloor heating
Image
fish island village living room
Image
fish island village winter garden
Image
fish island village kitchen
Image
fish island village bedroom

Floor Finishes

  • Amtico wood effect flooring to the entrance hall and kitchen/dining/living room
  • Carpet to bedrooms
  • Large format floor tiles to en-suite and bathroom
Image
fish island village living room
Image
fish island village winter garden
Image
fish island village kitchen
Image
fish island village bedroom

Decorative Finishes

  • Built-in wardrobe to master bedroom 
  • White painted flush internal doors with contemporary brushed stainless steel ironmongery
  • Square cut skirting and architrave
  • Walls and ceiling painted in white emulsion

     
Image
fish island village living room
Image
fish island village winter garden
Image
fish island village kitchen
Image
fish island village bedroom

Electrical

  • TV, BT and data points to selected locations
  • Wiring for customer’s own connection to super-fast Broadband, up to 100MB*
  • Pre-wired for customer’s own Sky+ and Sky Q connection via subscription own connection to super-fast Broadband, up to 100MB*
  • External lighting to balcony
  • Video entry system to every apartment, linked to main entrance door 
  • Sprinkler system to all apartments 
Image
fish island village living room
Image
fish island village winter garden
Image
fish island village kitchen
Image
fish island village bedroom

External Finishes

  • Porcelain tiling to balcony
  • External electrical socket
Image
fish island village living room
Image
fish island village winter garden
Image
fish island village kitchen
Image
fish island village bedroom

Warranty

  • 10 year NHBC warranty
Image
fish island village living room
Image
fish island village winter garden
Image
fish island village kitchen
Image
fish island village bedroom
Buying Calculators
Mortgage calculator

By putting in a few simple details we'll work out how much your monthly mortgage repayments could be.*

  • £

Your mortgage calculation

Deposit
Mortgage Required
Monthly Payments

*Hill do not provide mortgage advice, but our sales consultants will happily point you in the direction of an independent mortgage advisor who can help find the best deal for you.

Stamp Duty calculator

Our calculator provides a guide for how much Stamp Duty you will need to pay when purchasing your new property.*

  • £

Your Stamp Duty calculation

You pay % up to
You pay % up to
You pay % up to
You pay % up to £1,500,000
You pay % over £1,500,000
Total you pay

*First time buyers will not pay any stamp duty on property purchases below £300,000 with further relief available for transactions up to £500,000. Any property purchased over £500,000 by a first time buyer will not be eligible for SDLT relief and standard rates will apply. This calculator is provided as a guide only on how much Stamp Duty Land Tax (SDLT) you will need to pay in England and Northern Ireland. It assumes that you are a UK resident and the property is freehold and is for primary residential purposes. For more information, visit www.gov.uk/stamp-duty-land-tax.

Developments

    Locations

      Image
      HBF 5 Star Home Builders Federation 2025
      Image
      Hill - What House - Three Times Housebuilder Of The Year
      Image
      CIBSE 2020
      Image
      NHBC Awards 2020