Cranbrook, Kent, TN17 3LQ Directions and opening times

  • £399,000
  • 2
     bedrooms
  • 2
     bathrooms

Hartley Acres The Beacon, Number 37

Jump to:

Development Jump Navigation

Image
Plot 10, 11 and 12 , Hartley Acres, Front

Plot 10, 11 and 12 , Hartley Acres, Front

Created for Living

The Beacon, number 37 is a charming 2 double bedroom semi detached house, spread across two floors. This home offers a well-designed space  in a picturesque setting, the ideal home for a small family. 

Sales Suite Address: Hartley Road, Cranbrook, TN17 3LQ. Opening Times: Wednesday to Sunday 10:00 - 17:30.

Property Highlights

  • Spacious open-plan kitchen/dining/living area spanning the entire ground floor
  • Turfed garden accessible via patio doors
  • Two double bedrooms, including principal suite with an en-suite and bespoke built in wardrobes
  • Stylish family bathroom with modern fixtures
  • Driveway with two parking spaces

Read more

Out and about

Hartley Acres is a picturesque new community situated in the heart of Cranbrook, offering residents natural beauty and easy access to the diverse range of amenities and attractions. 

Within reach of the development itself, Hartley Acres boasts excellent facilities, including:

  • Co-op supermarket for everyday essentials
  • The Cranbrook Bakery
  • St Dunstan’s Church, Cranbrook
  • The Weald Sports Centre
  • Cranbrook Primary School

With the wealth of shops and amenities of a larger town, yet with all the ambience of a village – one that hosts its own biennial Literary Festival – its streets lined with period buildings and landmark windmill on the skyline have made Cranbrook highly sought-after; a special place often called the capital of the Weald.

From the monthly Farmers’ Market that brings growers and producers from around the area, to celebrating a broader heritage at October’s Apple Carnival, Cranbrook is linked naturally and organically to its wider setting. Now Hartley Acres places connection at its own heart, with public rights of way reinstated and upgraded, and new green-framed footpaths and cycleways; with Cranbrook just minutes away.

Transportation

  • Staplehurst station - with a car park, is a short drive away, quickly connecting you to the Capital and the Coast.
  • The M20 and major A-roads are within easy reach, while the local cycle routes connect you to the local hotspots. 

Next Steps

Contact our sales team to arrange a viewing and visit your dream home at the award winning Hartley Acres development. 

External CGI is of The Beacon housetype. Internal CGIs are of standard housetype, individual layout and specification may vary. 

*5% Deposit Boost terms and conditions apply. Cannot be used in conjunction with any other offer. Speak to our sales team for more information.

Features

  • 5% deposit contribution worth £20,500

  • High specification throughout

  • Two spacious double bedrooms

  • En-suite & family bathroom

  • Fully fitted kitchen with integrated appliances

  • Underfloor heating to ground floor

  • Surrounded by green open spaces

  • Schools nearby

  • 10 minute walk to the local high street

  • Good rail and road links

:
:
:
:
:
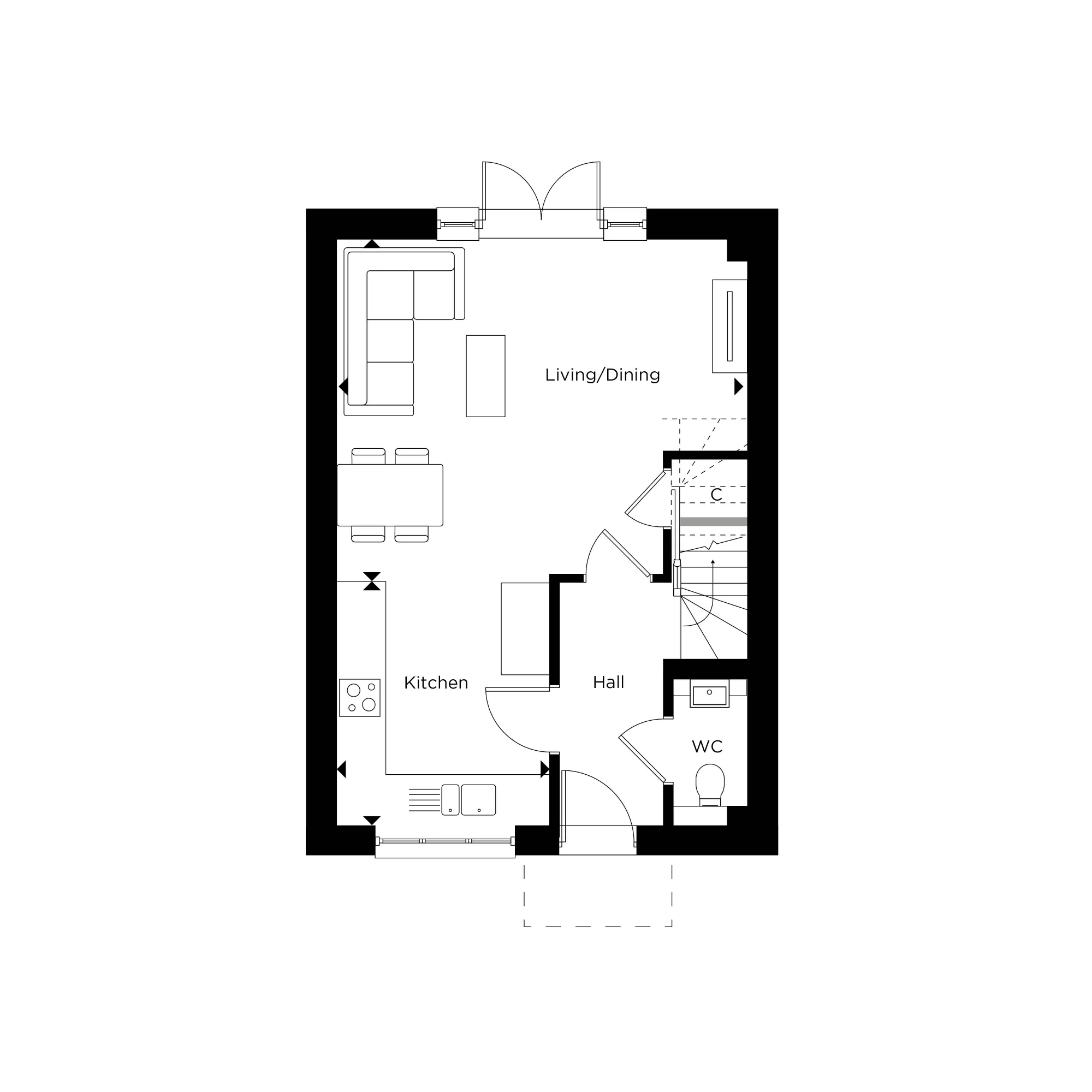
Floor Plans
The Beacon, Number 37 Ground Floor
Kitchen
2.75m
 x 
3.10m
9'0" x 10'2"
Living / Dining
5.35m
 x 
4.40m
17'7" x 14'5"
Image
Hartley Acres, The Beacon, Number 37, Ground Floor
The Beacon, Number 37 First Floor
Principal Bedroom
3.75m
 x 
3.80m
12'4" x 12'6"
Bedroom 2
3.10m
 x 
3.65m
10'2" x 12'0"
Image
Hartley Acres, The Beacon number 37
Site Plan
  • Available
  • Reserved
  • Sold
Specification

Kitchen & Utility

2 & 3 bedroom homes

  • Matt finish shaker-style kitchen units with soft close to doors and drawers
  • Caesarstone worktops with matching upstand and splashback behind hob
  • Induction hob
  • Integrated single oven
  • Integrated microwave
  • Integrated fridge/freezer
  • Integrated dishwasher
  • Integrated washer/dryer or freestanding in hallway cupboard to The Pendle
  • Integrated cooker hood
  • Stainless steel under mounted sink with contemporary brushed steel mixer tap
  • LED feature lighting to wall units

4 & 5 bedrooms homes

  • Matt finish shaker-style units with soft close doors and drawers
  • Caesarstone worktop with matching upstand and splashback behind hob
  • Induction hob
  • Integrated single oven
  • Integrated compact combi oven/microwave
  • Integrated warming drawer*
  • Integrated wine cooler*
  • Integrated fridge/freezer
  • Separate fridge & freezer*
  • Integrated dishwasher
  • Integrated cooker hood
  • Stainless steel under mounted sink with contemporary brushed steel mixer tap
  • Quooker hot/cold/boiling tap*
  • LED feature lighting to wall units
  • Matt finish shaker-style units with soft close doors
  • Caesarstone worktops with matching upstand
  • Stainless steel under mounted sink with contemporary brushed steel mixer tap
  • Freestanding washing machine
  • Freestanding condenser dryer

*Upgraded specification to plots 108–117.

Image
HARTLEY ACRES, 5 bedroom show home, kitchen
Image
HARTLEY ACRES, 5 bedroom show home, utility
Image
Hartley Acres, The Lewis, kitchen detail
Image
Hartley Acres, The Brook - Kitchen detail

Bathroom & En-suite

2 & 3 bedroom homes

En-suite

  • Low profile shower tray with glass shower screen/door
  • Framed feature mirror with shelf to match vanity top (where layout allows)
  • Large format wall and floor tiles
  • Heated chrome towel rail

Bathroom

  • Bath with shower over and glass screen
  • Bath panel to match vanity top
  • Framed feature mirror with shelf (where layout allows)
  • Large format wall and floor tiles
  • Heated chrome towel rail

4 & 5 bedroom homes

En-suite

  • Low profile shower tray with glass shower door
  • Feature mirror cabinet with LED lighting (to principal en suite and second en-suite*, where layout allows)
  • Recessed shower shelf
  • Large format wall and floor tiles
  • Heated chrome towel rail

Bathroom

  • Bath with shower over and glass shower screen or separate shower enclosure where applicable
  • Low profile shower tray with glass shower door where applicable
  • Bath panel to match vanity top
  • Feature mirror cabinet with LED lighting (where layout allows)
  • Recessed shower shelf
  • Large format wall and floor tiles
  • Heated chrome towel rail
Image
Plot 9 2 bed
Image
Hartley Acres, The Lewis, bathroom chrome towel rail
Image
Plot 4
Image
Hartley Acres, The Lewis, WC

Heating & Water

2, 3, 4 & 5 bedroom homes

  • Underfloor heating to ground floor, radiators to upper floor (The Furth and The Pendle have underfloor
    heating* throughout)
  • Heated chrome towel rails to bathroom and en suites
  • Air source heat pump
  • Hot water storage tank

 

Image
Plot 9 2 bed
Image
Plot 4
Image
Plot 9 2 bed
Image
Plot 4

Electrical

2 & 3 bedroom homes

  • Downlights to entrance hall, open-plan kitchen/living/dining area, kitchen/breakfast/family area, bathroom, en suite and WC
  • Pendant fittings to separate living room, landing and all bedrooms
  • LED feature lighting to wall units in kitchen
  • Shaver sockets to bathroom and en suite
  • TV, BT and data points to selected locations
  • BT & Hyperoptic fibre connection to all properties for customer's choice of broadband provider
  • Pre-wired for customer's own Sky Q connection
  • External lighting to front and rear of property

4 & 5 bedroom homes

  • Downlights to entrance hall, kitchen, open-plan kitchen/ dining/family, bathroom, en suites, WC, utility room and principal bedroom
  • Pendant fittings to separate living room, dining room, study, landing and other bedrooms
  • LED feature lighting to wall units in kitchen
  • Selected sockets with integrated USB port
  • Shaver sockets to bathroom and en suites
  • TV, BT and data points to selected locations
Image
Plot 3
Image
vb2352520_32331_ENSUITE_1340x1600.jpg
Image
Plot 9 2 bed
Image
Plot 4

Internal Finishes

2 & 3 bedroom homes

  • Timber staircase with carpeted treads and risers
  • White painted single panel moulded internal doors with contemporary dual finish ironmongery
  • Built-in mirrored wardrobe with sliding doors to principal bedroom
  • Square cut skirting and architrave
  • Walls painted in white emulsion
  • Smooth ceilings in white emulsion
  • Amtico flooring throughout ground floor and to kitchen/ living/dining room to The Furth and The Pendle
  • Carpet to stairs, landing and bedrooms
  • Large format tiles to bathroom and en-suite

4 & 5 bedroom homes

  • Timber staircase with carpeted treads and risers
  • White painted single panel moulded internal doors with contemporary dual finish ironmongery
  • Built in wardrobe with LED lighting to principal bedroom
  • Built in wardrobe to second bedroom in 5 bedroom homes*
  • Square cut skirting and architrave
  • Walls painted in white emulsion
  • Smooth ceilings in white emulsion
  • Amtico flooring throughout ground floor
  • Engineered timber flooring throughout ground floor*
  • Carpet to stairs, landing and bedrooms
  • Large format tiles to bathroom and en suites

*Upgraded specification to plots 108–117.

Image
Plot 9 2 bed
Image
Plot 3
Image
Plot 3
Image
Plot 9 2 bed

External Finishes

2 & 3 bedroom homes

  • Landscaping to front garden
  • Turf to rear garden
  • Paved patios
  • External tap
  • Garden Cycle Stores where no garage or car port present, as shown on site plan layout

4 & 5 bedroom homes

  • Landscaping to front garden
  • Turf to rear garden
  • Paved patios
  • External tap and power socket
Image
The Goddard - number 114 external
Image
Hartley Acres, The Lewis, garden
Image
Hartley Acres,  The Brook - Electric Car Charging Point
Image
HARTLEY ACRES, 5 bedroom show home, garden

Communal Areas & Parking

Image
Plot 10, 11 and 12 , Hartley Acres, Front
Image
Hartley Acres, Plot 16 and 17 External
Image
Hartley External
Image
Hartley Acres - Plot 13 Aerial Drone

Additional Information

  • 10-year NHBC warranty
  • Estate Charge applies, speak to our Sales Executives for information

A Management Company has been formed at Hartley Acres and will be responsible for the management and maintenance of the shared services and external communal areas of the of the development, including the green open spaces, play areas, un-adopted estate roads and footpaths. All homeowners will automatically be made members of the Management Company when they purchase a home at Hartley Acres. A managing agent has been appointed on behalf of the Management Company and will take on the day to day management and maintenance responsibilities.

Image
The Brook
Image
The Brook external
Image
Hartley External
Image
The Beacon external
Buying Calculators
Mortgage calculator

By putting in a few simple details we'll work out how much your monthly mortgage repayments could be.*

  • £

Your mortgage calculation

Deposit
Mortgage Required
Monthly Payments

*Hill do not provide mortgage advice, but our sales consultants will happily point you in the direction of an independent mortgage advisor who can help find the best deal for you.

Stamp Duty calculator

Our calculator provides a guide for how much Stamp Duty you will need to pay when purchasing your new property.*

  • £

Your Stamp Duty calculation

You pay % up to
You pay % up to
You pay % up to
You pay % up to £1,500,000
You pay % over £1,500,000
Total you pay

*First time buyers will not pay any stamp duty on property purchases below £300,000 with further relief available for transactions up to £500,000. Any property purchased over £500,000 by a first time buyer will not be eligible for SDLT relief and standard rates will apply. This calculator is provided as a guide only on how much Stamp Duty Land Tax (SDLT) you will need to pay in England and Northern Ireland. It assumes that you are a UK resident and the property is freehold and is for primary residential purposes. For more information, visit www.gov.uk/stamp-duty-land-tax.

Landscape Logo

Hartley Acres Sales Suite

Hartley Road
Cranbrook
Kent
TN17 3LQ
Get directions
Register your interest
01580 231556
Opening hours
Sunday: 10:00-17:30
Monday: 10:00-17:30
Tuesday: 10:00-17:30
Wednesday: 10:00-17:30
Thursday: 10:00-17:30
Friday: 10:00-17:30
Saturday: 10:00-17:30

Hartley Acres

Hartley Acres

Developments

    Locations

      Image
      HBF 5 Star Home Builders Federation 2025
      Image
      Hill - What House - Three Times Housebuilder Of The Year
      Image
      CIBSE 2020
      Image
      NHBC Awards 2020