The Empire Apartments, Apartment 901

Dagenham, London, RM9 6PE Directions and opening times

  • £387,000
  • 2
     bedrooms
  • 2
     bathrooms

Dagenham Green The Empire, Apartment 901

Jump to:

Development Jump Navigation

Development Jump Navigation

Image
Dagenham Green

Dagenham Green

Created for Living

The Empire, Apartment 901

READY TO MOVE IN | 5th floor apartment with large private balcony | 21 mins to Central London | 2 mins walk to Dagenham Dock station | Final remaining apartments in The Empire | Sales Suite & Show Homes open daily

Living space & flow

This 770 sq ft home is arranged around a well-proportioned open-plan kitchen, dining and living area, with the kitchen set neatly to one side to maintain a clear sense of space for relaxing and entertaining. Large windows bring in strong natural light, with direct access onto the large private balcony.

Bedrooms & layout

Two double bedrooms are positioned away from the living area, offering privacy and flexibility. The principal bedroom benefits from fitted wardrobes and a dedicated en-suite, while the second bedroom sits close to the main bathroom - ideal for guests, sharers or family living.

Storage & specification

With a generous entrance hall, built-in cupboards and a separate utility cupboard housing the washer/dryer, keeping the kitchen uncluttered, this apartment boasts smart storage solutions 

High-quality finishes include underfloor heating throughout, a modern kitchen with integrated Bosch appliances, contemporary bathrooms and high-speed fibre connectivity.

Location

Set within The Empire at Dagenham Green, residents enjoy access to a concierge service, landscaped gardens, cafés, shops and a five-acre Central Park - all forming part of a thoughtfully designed new neighbourhood.

Connectivity

Dagenham Dock station is just a 2-minute walk away, offering fast links to the City in approximately 21 minutes and Canary Wharf in around 24 minutes, with District line services also within easy reach.

Enquire now to arrange a viewing or visit our Show Homes and discover more about life at Dagenham Green.

Tenure:
Leasehold
Service charge:
£3007.00
Time remaining on lease:
999 years

Features

  • Two double bedrooms, including principal with en-suite

  • Integrated Bosch kitchen appliances

  • Large private balcony accessed from the living area with views across the podium gardens

  • Residents car club

  • Dedicated utility cupboard with washer/dryer

  • Fitted wardrobes to principal bedroom

  • Secure cycle storage

  • On-site concierge

*Deposit Boost - Offer is subject to terms and conditions, up to the value of 5% purchase price, selected plots only. The offer cannot be used in conjunction with any other offer. Valid for a limited time. Please contact a member of our sales team for more information. 

 

 

Tenure:
Leasehold
Service charge:
£3007.00
:
:
Time remaining on lease:
999 years
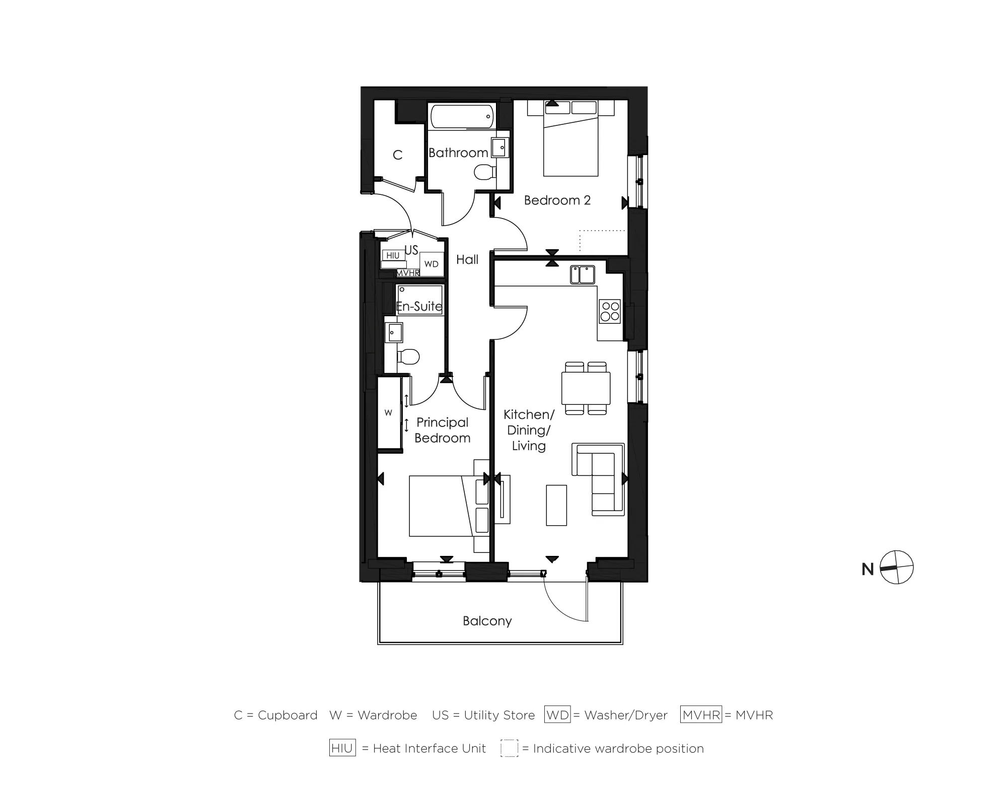
Floor Plans
The Empire, Apartment 901 Floorplan
Kitchen/living & dining room
3.35m
 x 
7.50m
11'0" x 24'7"
Principal bedroom
2.80m
 x 
4.60m
9'2" x 15'1"
Bedroom 2
3.35m
 x 
3.90m
11'0" x 12'10"
Image
The Empire, Apartment 901 Floorplan
Site Plan
Buying Calculators
Mortgage calculator

By putting in a few simple details we'll work out how much your monthly mortgage repayments could be.*

  • £

Your mortgage calculation

Deposit
Mortgage Required
Monthly Payments

*Hill do not provide mortgage advice, but our sales consultants will happily point you in the direction of an independent mortgage advisor who can help find the best deal for you.

Stamp Duty calculator

Our calculator provides a guide for how much Stamp Duty you will need to pay when purchasing your new property.*

  • £

Your Stamp Duty calculation

You pay % up to
You pay % up to
You pay % up to
You pay % up to £1,500,000
You pay % over £1,500,000
Total you pay

*First time buyers will not pay any stamp duty on property purchases below £300,000 with further relief available for transactions up to £500,000. Any property purchased over £500,000 by a first time buyer will not be eligible for SDLT relief and standard rates will apply. This calculator is provided as a guide only on how much Stamp Duty Land Tax (SDLT) you will need to pay in England and Northern Ireland. It assumes that you are a UK resident and the property is freehold and is for primary residential purposes. For more information, visit www.gov.uk/stamp-duty-land-tax.

Landscape Logo

Dagenham Green Sales Suite

Kent Avenue
Dagenham
London
RM9 6PE
Get directions
Book your viewing
02039061953
Opening hours
Sunday: 10:00-17:30
Monday: 10:00-17:30
Tuesday: 10:00-17:30
Wednesday: 10:00-17:30
Thursday: 10:00-17:30
Friday: 10:00-17:30
Saturday: 10:00-17:30

What 3 Words: ///tamed.cheer.lance

Dagenham Green

Dagenham Green

Developments

    Locations

      Image
      HBF 5 Star Home Builders Federation 2025
      Image
      Hill - What House - Three Times Housebuilder Of The Year
      Image
      CIBSE 2020
      Image
      NHBC Awards 2020