Apartment 896 The Empire Apartments

Dagenham, London, RM9 6PE Directions and opening times

  • £377,000
  • 2
     bedrooms
  • 1
     bathrooms

Dagenham Green Apartment 896 - The Empire Apartments

Jump to:

Development Jump Navigation

Development Jump Navigation

Image
Dagenham Green The Empire

Created for Living

This 5th floor apartment is ready to move in by the end of the year, offering 767sqft of carefully crafted space including a private balcony with unobstructed views over our 5-acre central park.  

Sales Suite Address: Dagenham, London, RM9 6PE. Opening Times: Monday - Sunday, 10:00 - 17:30.

Apartment 896 is a 5th floor 767sqft 2-bedroom 2-bathroom West-facing home in The Empire with unobstructed views looking over the landscaped central park. 

Property Highlights

  • Two double bedrooms including a principal bedroom with en-suite and fitted wardrobes
  • Ample storage solutions for a clutter free environment
  • Underfloor heating throughout each apartment
  • Lift access to all floors
  • Pre-wired BT & Hyperoptic fibre connection as well as Sky Q Connection
  • Modern kitchen with integrated Bosch appliances

Out and about

Dagenham Green boasts a host of resident's amenities, including a concierge, gardens, a park and boardwalk, shops, a school, a social hub, cafés and 5-acres of green space.

Within reach of the development itself, Dagenham Green boasts excellent facilities, including:

  • Merrielands Retail Park – home to leading home wear brand and your local PureGym
  • Dagenham Leisure Park – watch the latest films at Vue Cinema Dagenham or grab a game of bowling!
  • ABC pre-school
  • Goresbrook Park – here you’ll find a skate park, basketball and 5-a-side courts plus 9.5 acres of greenery
  • Old Dagenham Park – an informal recreation area with outdoor bowling, a wheel park and tennis courts
  • Marsh Green Primary School – Ofsted rated ‘Good’
  • Dagenham Park Church of England Secondary School – Ofsted rated ‘Good’
  • Eastbrook Studios – London’s largest production campus for video and film

Lakeside is 16 minutes by car and Bluewater 24, both offering shopping, dining and family entertainment. Westfield Stratford City, with 300+ retailers, is 22 minutes by train from Dagenham Dock, with central London just a little further for shopping, culture and dining.

Transportation

Dagenham Dock Station is a 2-minute walk, with central London just 21 minutes away, and Canary Wharf in 24. The District line is also within easy reach via Dagenham Heathway. The A13 is a 4-minute drive, connecting to the M25 in 15 minutes and the Essex coast in under an hour.

Next Steps

Contact our sales team to arrange a tour of our Show Apartments and discover how life at Dagenham Green could take shape.

*Deposit Boost - Offer is subject to terms and conditions, up to the value of 5% purchase price, selected plots only. The offer cannot be used in conjunction with any other offer. Valid for a limited time. Please contact a member of our sales team for more information. 

^Bauble incentive only available upon reservation, gift will be received upon completion, luxury gifts vary. Incentive ends 31 December 2025, T&C’s apply. Speak with our sales team to find out more information. 

Tenure:
Leasehold
Service charge:
£3007.00
Time remaining on lease:
999 years

Features

  • Approx. 767sqft.

  • Never miss a parcel with our on-site concierge

  • Private balcony with dual aspect views

  • 24 minutes to Canary Wharf from Dagenham Dock Station

  • Residents car club

  • Experience the magic of a new home this year, and with our festive bauble incentive you could receive a luxury gift^

  • Move in by the end of the year

  • Excellent transport links to Canary Wharf and central London

  • Need help with your deposit? Speak with our team about our 5% deposit boost*.

Tenure:
Leasehold
Service charge:
£3007.00
:
:
Time remaining on lease:
999 years
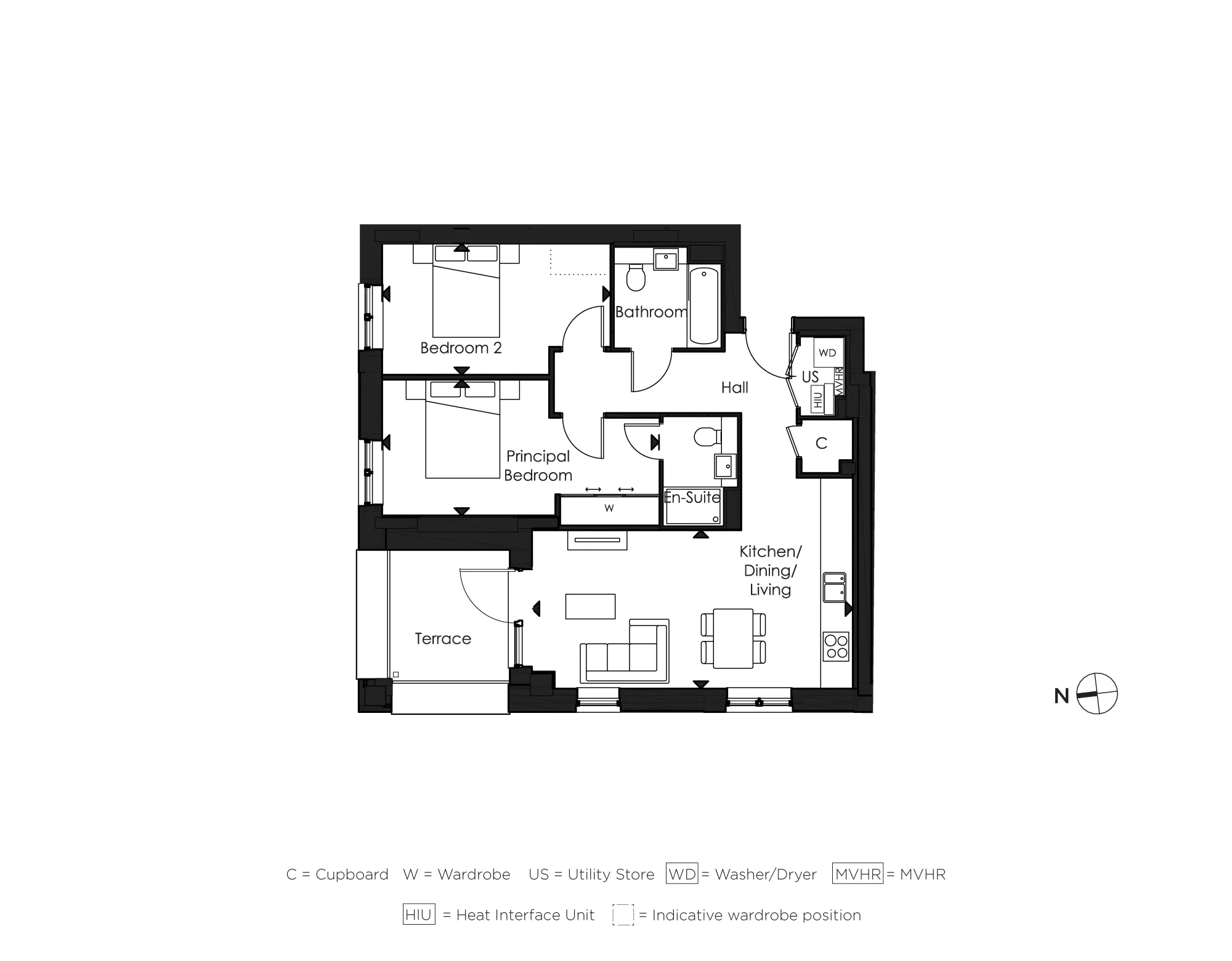
Floor Plans
Apartment 896, The Empire Building
Kitchen / Dining / Living
3.20m
 x 
6.50m
10'6" x 21'4"
Principal Bedroom
2.75m
 x 
5.60m
9'0" x 18'4"
Bedroom 2
2.65m
 x 
4.65m
8'8" x 15'3"
Image
Dagenham_Green_Floorplans_896
Site Plan
Buying Calculators
Mortgage calculator

By putting in a few simple details we'll work out how much your monthly mortgage repayments could be.*

  • £

Your mortgage calculation

Deposit
Mortgage Required
Monthly Payments

*Hill do not provide mortgage advice, but our sales consultants will happily point you in the direction of an independent mortgage advisor who can help find the best deal for you.

Landscape Logo

Dagenham Green Sales Suite

Kent Avenue
Dagenham
London
RM9 6PE
Get directions
Book your viewing
02039061953
Opening hours
Sunday: 10:00-17:30
Monday: 10:00-17:30
Tuesday: 10:00-17:30
Wednesday: 10:00-17:30
Thursday: 10:00-17:30
Friday: 10:00-17:30
Saturday: 10:00-17:30

Dagenham Green

Dagenham Green

Developments

    Locations

      Image
      HBF 5 Star Home Builders Federation 2025
      Image
      Hill - What House - Three Times Housebuilder Of The Year
      Image
      CIBSE 2020
      Image
      NHBC Awards 2020