The Olive, Number 117

Billericay, Essex, CM12 9RR Directions and opening times

  • £799,950
  • 4
     bedrooms
  • 2
     bathrooms

Kingsley Park The Olive, Number 117

Jump to:

Development Jump Navigation

Development Jump Navigation

Image
Kingsley Park - The Olive Number 8 - Front External

Created for Living

The Olive, Number 117

A spacious four double bedroom detached home with a fully inclusive specification, garage and driveway in the heart of Essex. This house offers expansive open-plan living over three floors with elegant style and modern comfort.  

Property Highlights

Each home has been designed with a premium all inclusive specification, so your new home is ready for you from the moment you step inside. Every detail has been considered and included as standard.

  • Integrated kitchen appliances with Caesarstone worktops and splashback behind hob
  • Amtico flooring to ground floor with underfloor heating
  • Ample storage solutions for a clutter free environment
  • Heated chrome towel rail to bathroom and en-suite
  • External power socket and tap
  • EV car charging
  • Pre-wired BT & Hyperoptic fibre connection as well as Sky Q Connection

Read more

Sales Suite Address: Kennel Lane, Billericay, Essex, CM12 9RR. Opening Times: Open Daily 10:00am - 17:30pm. 

Out and about

Billericay is a welcoming community with all the everyday essentials close at hand – from well-regarded schools and independent shops to a pharmacy and post office. Alongside this convenience, the area is surrounded by natural green spaces and a wealth of attractions perfect for family-friendly fun.

For those looking to explore further, neighbouring Brentwood offers an additional array of shops, restaurants and leisure destinations, all just a short drive away.

Transportation

  • Billericay Train station is only a 9 minute drive away, offering quick access into Stratford and London Liverpool Street.
  • Billericay is conveniently located between the A127 and A12, with both Chelmsford and the M25 Junction 28 interchange just under ten miles away, offering excellent road connectivity.

The Hill Group

With a proud reputation as a five-star rated, Top 10 UK housebuilder*. The Hill Group is known for homes built with care, quality, and attention to detail. It’s all part of our promise to create homes where comfort, quality, and peace of mind come together.

Next Steps

Contact our sales team to arrange a viewing to visit our show homes. 

*Photography represents one of our Kingsley Park show homes. Computer generated image is indicative only and subject to change. Stamp Duty Contribution available, terms and conditions apply.

Tenure:
Freehold
Service charge:
£345.29
Council tax band:
TBC

Features

  • Fully inclusive specification with an EPC B rating

  • Stamp Duty Contribution* available

  • Four double bedrooms

  • Expansive open-plan kitchen/dining/living area

  • Principal bedroom with en-suite and fitted wardrobe

  • Separate study

  • Garage and driveway parking for two vehicles

  • South-east facing rear garden

  • Billericay High Street and Billericay train station within easy reach

Tenure:
Freehold
Service charge:
£345.29
:
Council tax band:
TBC
:
Floor Plans
The Olive, Number 117 Ground Floor
Kitchen / Dining / Living
8.80m
 x 
6.10m
28'10" x 20'0"
Image
Kingsley Park - The Olive - Plot 117 Ground Floor
The Olive, Number 117 First Floor
Bedroom 2
3.60m
 x 
3.40m
11'10" x 11'2"
Bedroom 3
2.90m
 x 
3.40m
9'6" x 11'2"
Bedroom 4
2.90m
 x 
2.60m
9'6" x 8'6"
Study
2.40m
 x 
2.60m
7'10" x 8'6"
Image
Kingsley Park - The Olive PLOT 117 First Floor
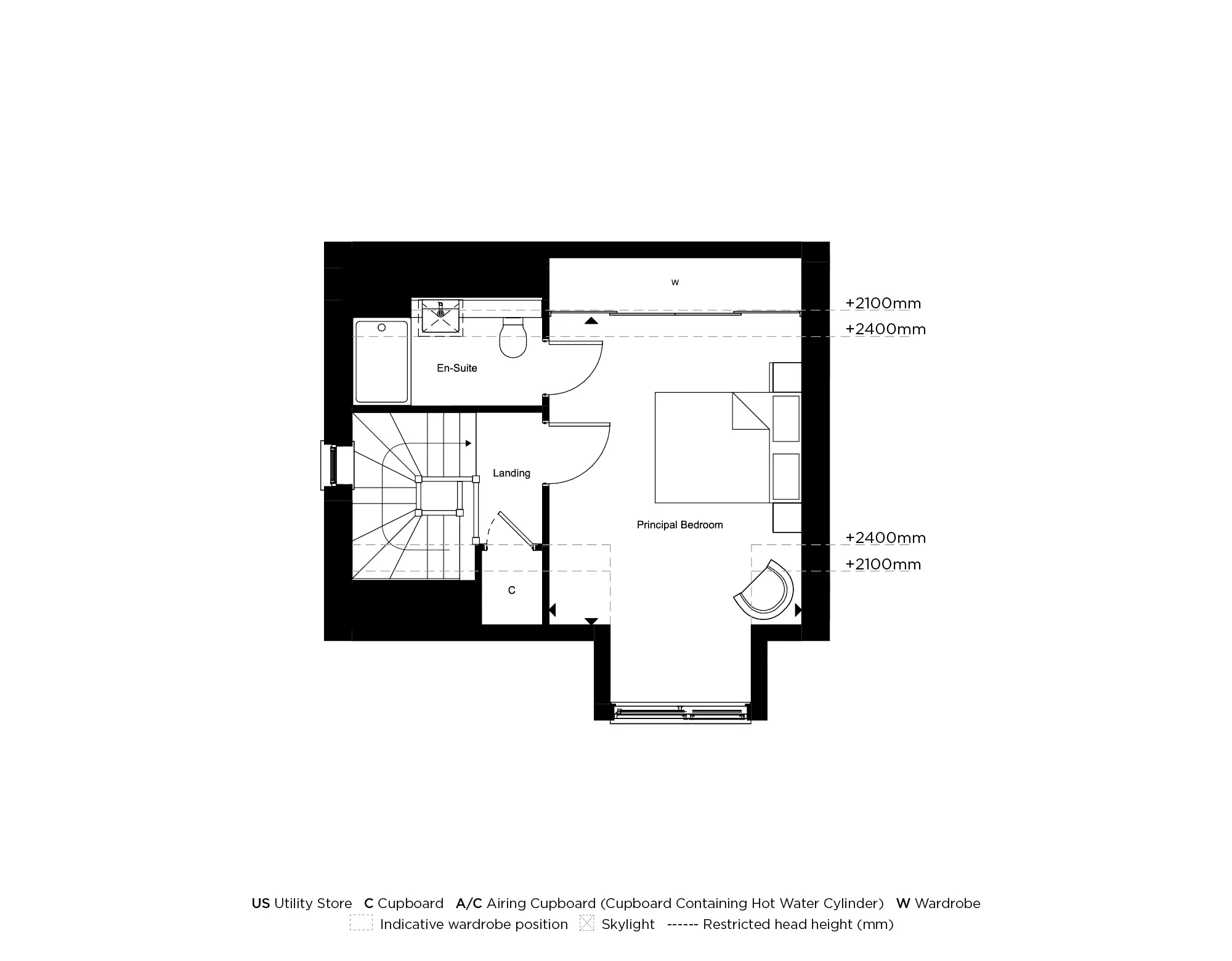
The Olive, Number 117 Second Floor
Principal Bedroom
4.20m
 x 
3.40m
13'9" x 11'2"
Image
Kingsley Park - The Olive Plot 117 Second Floor
Site Plan
  • Available
  • Reserved
  • Sold
Specification

Kitchen & Utility

  • Matt finish handless units with soft close to doors and drawers
  • Caesarstone worktops with matching upstand and splashback behind hob
  • Induction hob
  • Integrated single oven
  • Integrated microwave
  • Integrated compact combi oven/microwave*
  • Integrated fridge/freezer
  • Integrated dishwasher
  • Integrated cooker hood
  • Stainless steel under mounted sink with contemporary brushed steel mixer tap
  • LED feature lighting to wall units
  • Washer Dryer

Specification varies. Items with an * feature within our homes with a premium specification.

Image
Kingsley Park - Plot 7 The Elm Kitchen
Image
Kingsley Park - sink
Image
Kingsley Park - oven
Image
Kingsley Park - oven 2

Bathroom & En-suite

Bathroom

  • Bath with shower over and glass screen
  • Low profile shower tray with glass shower door*
  • Bath panel to match vanity top
  • Feature mirror cabinet with LED lighting*
  • Recessed shower shelf*
  • Framed feature mirror with shelf (where layout allows)
  • Large format all and floor tiles
  • Heated chrome towel rail

En-suite

  • Low profile shower tray with glass shower glass
  • Framed feature mirror with shelf to match vanity top
  • Feature mirror cabinet with LED lighting (to principal en-suite only)
  • Recessed shower shelf*
  • Large format wall and floor tiles
  • Heated chrome towel rail

Specification varies. Items with an * feature within our homes with a premium specification.

Image
Kingsley Park - Plot 7 The Elm Bathroom
Image
Kingsley Park - Kitchen Sink
Image
Kingsley Park - shower
Image
Kingsley Park - bathroom

Heating and Water

  • Underfloor heating to ground floor, radiators to upper floor
  • Heated chrome towel rails to bathroom and en-suites
  • Air source heat pump
  • Hot water storage tank
Image
Kingsley Park - Plot 7 The Elm Dining / Living
Image
Kingsley Park - Plot 7 The Elm - Bedroom 2
Image
Kingsley Park - Plot 7 The Elm Family Room
Image
Kingsley Park - Plot 7 The Elm Bathroom

Electrical

  • Downlights to entrance hall, open plan kitchen/dining/living room, bathroom, en-suite and WC
  • Pendant fittings to landings, family room and all bedrooms
  • LED feature lighting to wall units in kitchen
  • Selected sockets with integrated USB port*
  • Shaver sockets to bathroom and en-suite
  • Shaver sockets to bathroom and en-suite and shower room*
  • TV, BT and data points to selected locations
  • High level TV point to living/dining room
  • High level TV point to kitchen/living/dining room and family room*
  • Fibre connection to all properties for customer’s choice of broadband provider
  • External lighting to front and rear of property
  • External power socket
  • Light and power to garage*
  • Hard-wired smoke and heat detectors
  • Spur for customer’s own installation of security alarm panel
  • Electric car charging point to all plots

Specification varies. Items with an * feature within our homes with a premium specification.

Image
Kingsley Park - Plot 7 The Elm Kitchen
Image
Kingsley Park - Plot 7 The Elm Electrical Spec
Image
Kingsley Park - Bedroom 3
Image
Kingsley Park - bathroom

Internal Finishes

  • Timber staircase with carpeted treads and risers
  • White painted flush internal doors with contemporary dual finish ironmongery
  • Built-in mirrored wardrobe with sliding doors to principal bedroom
  • Square cut skirting and architrave
  • Walls painted white emulsion
  • Smooth ceilings in white emulsion
  • Amtico flooring throughout ground floor
  • Carpet to stairs, landing, family room and bedrooms
  • Large format tiles to bathroom and en-suite
Image
Kingsley Park - First Landing
Image
Kingsley Park - decorative finish
Image
Kingsley Park - decorative finish 2
Image
Kingsley Park - bedroom

External Finishes

  • Landscaping to front garden
  • Turf to rear garden
  • Paved patio
  • External tap
  • Garden shed (where no garage present)
Image
Kingsley Park - Number 7 Elm Garden
Image
Kennel Lane, Billericay Planning CGI 2
Image
Kennel Lane, Billericay Planning CGI 3
Image
The Cedar

Additional Information

  • Traditionally constructed brick and block outer walls, cavity filled with insulation
  • Concrete floor to ground floors with timber to upper floors
  • Each home has parking, either single garage, or double garage to all houses. Driveway parking for bungalows and 2 bed houses
  • uPVC rain-water goods
  • 10 year NHBC waranty
Image
The Maple
Image
Kingsley Park - Plot 7 The Elm Second Bedroom v2
Image
Kingsley Park - Plot 8 The Olive - Living Dining
Image
Kingsley Park - Plot 7 The Elm Study
Buying Calculators
Mortgage calculator

By putting in a few simple details we'll work out how much your monthly mortgage repayments could be.*

  • £

Your mortgage calculation

Deposit
Mortgage Required
Monthly Payments

*Hill do not provide mortgage advice, but our sales consultants will happily point you in the direction of an independent mortgage advisor who can help find the best deal for you.

Stamp Duty calculator

Our calculator provides a guide for how much Stamp Duty you will need to pay when purchasing your new property.*

  • £

Your Stamp Duty calculation

You pay % up to
You pay % up to
You pay % up to
You pay % up to £1,500,000
You pay % over £1,500,000
Total you pay

*First time buyers will not pay any stamp duty on property purchases below £300,000 with further relief available for transactions up to £500,000. Any property purchased over £500,000 by a first time buyer will not be eligible for SDLT relief and standard rates will apply. This calculator is provided as a guide only on how much Stamp Duty Land Tax (SDLT) you will need to pay in England and Northern Ireland. It assumes that you are a UK resident and the property is freehold and is for primary residential purposes. For more information, visit www.gov.uk/stamp-duty-land-tax.

Landscape Logo

Kingsley Park Sales Suite

Kennel Lane
Billericay
Essex
CM12 9RR
Get directions
Contact us
01277 282038
Opening hours
Sunday: 10:00-17:30
Monday: 10:00-17:30
Tuesday: 10:00-17:30
Wednesday: 10:00-17:30
Thursday: 10:00-17:30
Friday: 10:00-17:30
Saturday: 10:00-17:30

What3Words: ///shady.worm.stem

Please note, our offices will be closed on Sunday 5th April. 

 

Kingsley Park

Kingsley Park

Developments

    Locations

      Image
      HBF 5 Star Home Builders Federation 2025
      Image
      Hill - What House - Three Times Housebuilder Of The Year
      Image
      CIBSE 2020
      Image
      NHBC Awards 2020