The Holly, Number 87

Billericay, Essex, CM12 9GQ Directions and opening times

  • £619,950
  • 3
     bedrooms
  • 2
     bathrooms

Kingsley Park The Holly, Number 87.

Jump to:

Development Jump Navigation

Development Jump Navigation

Image
Kingsley Park - The Holly - Plots 93 & 94.jpg

Created for Living

The Holly, Number 87
Kingsley Park, Billericay

The Holly, Number 87 is a thoughtfully designed three‑bedroom home that provides flexible living for growing families or those seeking a little more space. With adaptable interiors and dedicated parking, this home blends comfort and practicality within a delightful natural setting. Located in one of Essex’s most desirable towns, residents can enjoy easy access to Billericay’s bustling high street, green parks and highly regarded schools.

Property Highlights:

  • Bright open plan kitchen/dining/living area spanning across the entire ground floor, with underfloor heating
  • The kitchen is a stylish space, finished with contemporary matt handleless units featuring soft‑close doors and drawers, complemented by sleek Caesarstone worktops with matching upstand and a coordinated splashback behind the induction hob.
  • High‑quality integrated appliances include a single oven, microwave, fridge/freezer, dishwasher, cooker hood and washer/dryer.
  • Three generous double bedrooms, including a principal bedroom with fitted wardrobe and en-suite 
  • Separate family room on the first floor measuring 5.2m x 3.1m, offering a well-proportioned space ideal for relaxing or entertaining.
  • Fitted with an air source heat pump, delivering energy-efficient, cost-effective heating 
  • BT Openreach and Hyperoptic cabling have been installed to provide a superfast broadband connection.

Read more

A Lifestyle at Kingsley Park
Billericay is a vibrant, welcoming community, with beautiful green spaces on your doorstep, family-friendly attractions, and easy access to nearby towns, offering the perfect balance of relaxation at home, adventure, and connection.

  • A short 11-minute walk brings you to Tesco Express, making everyday shopping simple.
  • Reach Billericay Sports & Fitness Centre in a 21-minute walk from the development, making it easy to stay active, whether you’re hitting the gym, joining a class, or enjoying some leisure sport.
  • A 7-minute drive from Kingsley Park, Norsey Wood Country Park offers a peaceful escape into nature, perfect for walks, family adventures, or simply enjoying the great outdoors.
  • Families will love the excellent schools in and around Billericay, offering a range of outstanding options that make everyday life easier and provide the perfect foundation for children to thrive.
  • For those keen to venture further, nearby Brentwood brings even more shops, restaurants, and leisure options, all just a short drive from home.

Seamless Travel & Connections
Life in Billericay keeps you effortlessly connected, whether commuting, working, or enjoying a weekend getaway.

  • Billericay Train Station, just a 9-minute bike ride away, offers quick and direct services into Stratford and London Liverpool Street, making city commutes stress-free.
  • For road travel, Billericay sits conveniently between the A127 and A12, with Chelmsford and the M25 Junction 28 interchange both under ten miles away, giving you flexible routes across London, Essex, and beyond.
  • London Stansted Airport is around a 40-minute drive, ensuring both domestic and international journeys are simple and convenient.

Discover your Future Home
Arrange a visit with our sales team and tour our show homes at Kingsley Park.

Sales Suite: Kennel Lane, Billericay, Essex, CM12 9RR.
Opening Times: Open Thursday-Monday, 10:00–17:30

*Interior images represent the Kingsley Park show homes.

Tenure:
Freehold
Service charge:
£345.29
Council tax band:
TBC

Features

  • Three storey home, ready to move into 2027

  • Dual-aspect open plan kitchen/dining/living room with patio doors to the garden

  • Separate first floor family room

  • Three double bedrooms

  • Principal bedroom with fitted wardrobe and en-suite

  • Modern family bathroom

  • Driveway parking for two vehicles with EV charging

Tenure:
Freehold
Service charge:
£345.29
:
Council tax band:
TBC
:
Floor Plans
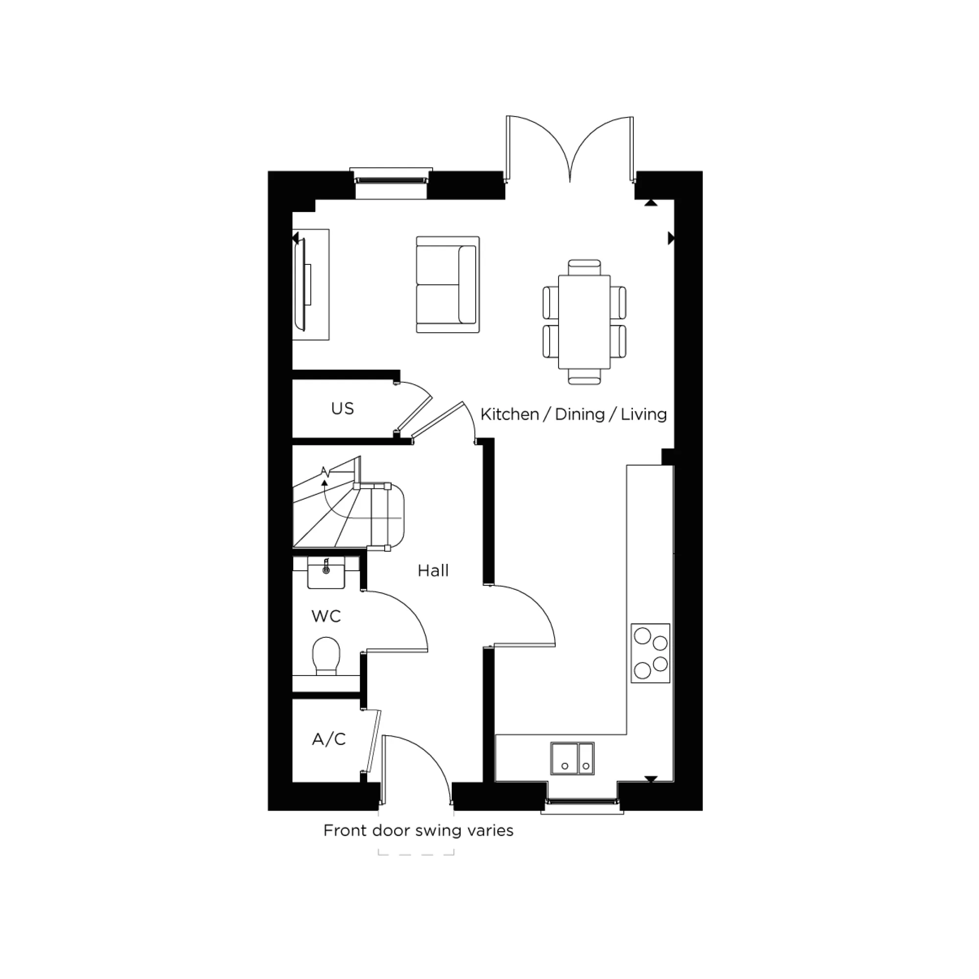
The Holly, Number 87 Ground Floor
Kitchen / Dining / Living
7.90m
 x 
5.20m
25'11" x 17'1"
Image
Kinglsey Park -The Holly - GF - Plots 86,87,95,96,98,99,136,137,172 & 173.png
The Holly, Number 87 First Floor
Family Room
5.20m
 x 
3.10m
17'1" x 10'2"
Bedroom 2
2.60m
 x 
5.20m
8'6" x 17'1"
Image
Kinglsey Park -The Holly - FF - Plots 86,87,95,96,98,99,136,137,172 & 173.png
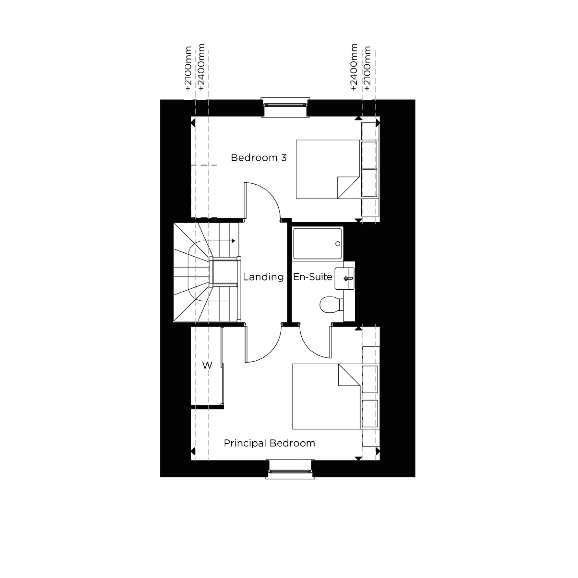
The Holly, Number 87 Second Floor
Principal Bedroom
3.10m
 x 
4.30m
10'2" x 14'1"
Bedroom 3
2.40m
 x 
4.30m
7'10" x 14'1"
Image
Kinglsey Park -The Holly - SF - Plots 86,87,95,96,98,99,136,137,172 & 173.png
Site Plan
  • Available
  • Reserved
  • Sold
Specification

Kitchen & Utility

  • Matt finish handless units with soft close to doors and drawers
  • Caesarstone worktops with matching upstand and splashback behind hob
  • Induction hob
  • Integrated single oven
  • Integrated microwave
  • Integrated compact combi oven/microwave*
  • Integrated fridge/freezer
  • Integrated dishwasher
  • Integrated cooker hood
  • Stainless steel under mounted sink with contemporary brushed steel mixer tap
  • LED feature lighting to wall units
  • Washer Dryer

Specification varies. Items with an * feature within our homes with a premium specification.

Image
Kingsley Park - Plot 7 The Elm Kitchen
Image
Kingsley Park - sink
Image
Kingsley Park - oven
Image
Kingsley Park - oven 2

Bathroom & En-suite

Bathroom

  • Bath with shower over and glass screen
  • Low profile shower tray with glass shower door*
  • Bath panel to match vanity top
  • Feature mirror cabinet with LED lighting*
  • Recessed shower shelf*
  • Framed feature mirror with shelf (where layout allows)
  • Large format all and floor tiles
  • Heated chrome towel rail

En-suite

  • Low profile shower tray with glass shower glass
  • Framed feature mirror with shelf to match vanity top
  • Feature mirror cabinet with LED lighting (to principal en-suite only)
  • Recessed shower shelf*
  • Large format wall and floor tiles
  • Heated chrome towel rail

Specification varies. Items with an * feature within our homes with a premium specification.

Image
Kingsley Park - Plot 7 The Elm Bathroom
Image
Kingsley Park - Kitchen Sink
Image
Kingsley Park - shower
Image
Kingsley Park - bathroom

Heating and Water

  • Underfloor heating to ground floor, radiators to upper floor
  • Heated chrome towel rails to bathroom and en-suites
  • Air source heat pump
  • Hot water storage tank
Image
Kingsley Park - Plot 7 The Elm Dining / Living
Image
Kingsley Park - Plot 7 The Elm - Bedroom 2
Image
Kingsley Park - Plot 7 The Elm Family Room
Image
Kingsley Park - Plot 7 The Elm Bathroom

Electrical

  • Downlights to entrance hall, open plan kitchen/dining/living room, bathroom, en-suite and WC
  • Pendant fittings to landings, family room and all bedrooms
  • LED feature lighting to wall units in kitchen
  • Selected sockets with integrated USB port*
  • Shaver sockets to bathroom and en-suite
  • Shaver sockets to bathroom and en-suite and shower room*
  • TV, BT and data points to selected locations
  • High level TV point to living/dining room
  • High level TV point to kitchen/living/dining room and family room*
  • Fibre connection to all properties for customer’s choice of broadband provider
  • External lighting to front and rear of property
  • External power socket
  • Light and power to garage*
  • Hard-wired smoke and heat detectors
  • Spur for customer’s own installation of security alarm panel
  • Electric car charging point to all plots

Specification varies. Items with an * feature within our homes with a premium specification.

Image
Kingsley Park - Plot 7 The Elm Kitchen
Image
Kingsley Park - Plot 7 The Elm Electrical Spec
Image
Kingsley Park - Bedroom 3
Image
Kingsley Park - bathroom

Internal Finishes

  • Timber staircase with carpeted treads and risers
  • White painted flush internal doors with contemporary dual finish ironmongery
  • Built-in mirrored wardrobe with sliding doors to principal bedroom
  • Square cut skirting and architrave
  • Walls painted white emulsion
  • Smooth ceilings in white emulsion
  • Amtico flooring throughout ground floor
  • Carpet to stairs, landing, family room and bedrooms
  • Large format tiles to bathroom and en-suite
Image
Kingsley Park - First Landing
Image
Kingsley Park - decorative finish
Image
Kingsley Park - decorative finish 2
Image
Kingsley Park - bedroom

External Finishes

  • Landscaping to front garden
  • Turf to rear garden
  • Paved patio
  • External tap
  • Garden shed (where no garage present)
Image
Kingsley Park - Number 7 Elm Garden
Image
Kennel Lane, Billericay Planning CGI 2
Image
Kennel Lane, Billericay Planning CGI 3
Image
The Cedar

Additional Information

  • Traditionally constructed brick and block outer walls, cavity filled with insulation
  • Concrete floor to ground floors with timber to upper floors
  • Each home has parking, either single garage, or double garage to all houses. Driveway parking for bungalows and 2 bed houses
  • uPVC rain-water goods
  • 10 year NHBC warranty from completion with NHBC
Image
The Maple
Image
Kingsley Park - Plot 7 The Elm Second Bedroom v2
Image
Kingsley Park - Plot 8 The Olive - Living Dining
Image
Kingsley Park - Plot 7 The Elm Study
Buying Calculators
Mortgage calculator

By putting in a few simple details we'll work out how much your monthly mortgage repayments could be.*

  • £

Your mortgage calculation

Deposit
Mortgage Required
Monthly Payments

*Hill do not provide mortgage advice, but our sales consultants will happily point you in the direction of an independent mortgage advisor who can help find the best deal for you.

Stamp Duty calculator

Our calculator provides a guide for how much Stamp Duty you will need to pay when purchasing your new property.*

  • £

Your Stamp Duty calculation

You pay % up to
You pay % up to
You pay % up to
You pay % up to £1,500,000
You pay % over £1,500,000
Total you pay

*First time buyers will not pay any stamp duty on property purchases below £300,000 with further relief available for transactions up to £500,000. Any property purchased over £500,000 by a first time buyer will not be eligible for SDLT relief and standard rates will apply. This calculator is provided as a guide only on how much Stamp Duty Land Tax (SDLT) you will need to pay in England and Northern Ireland. It assumes that you are a UK resident and the property is freehold and is for primary residential purposes. For more information, visit www.gov.uk/stamp-duty-land-tax.

Landscape Logo

Kingsley Park Sales Suite

Kennel Lane
Billericay
Essex
CM12 9GQ
Get directions
Contact us
01277 282038 
Opening hours
Sunday: 10:00-17:30
Monday: 10:00-17:30
Tuesday: Closed
Wednesday: Closed
Thursday: 10:00-17:30
Friday: 10:00-17:30
Saturday: 10:00-17:30

What3Words: ///laser.extend.digs

 

Kingsley Park

Kingsley Park

Developments

    Locations

      Image
      HBF Logo 2026
      Image
      Hill - What House - Three Times Housebuilder Of The Year
      Image
      CIBSE 2020
      Image
      NHBC Awards 2020