The Beech, Number 448

Cambridge, Cambridgeshire, CB5 8AA Directions and opening times

  • £849,950
  • 4
     bedrooms
  • 3
     bathrooms

Marleigh Park The Beech, Number 448

Jump to:

Development Jump Navigation

Image
Marleigh Park - The Beech - Plot 158

Created for Living

The Beech, Number 448
Marleigh Park, Cambridge 
FINAL BEECH HOME REMAINING

The Beech, number 448, is an impressive three‑storey semi-detached home offering expansive, flexible living. A bright open‑plan kitchen, dining and living space forms the heart of the home, while a separate family room with garden access provides an ideal spot for relaxing or entertaining. With four generous double bedrooms, two en‑suites, a detached double garage and thoughtful energy‑efficient features throughout, this home is crafted to suit the needs of modern family life.

Property Highlights:

  • The kitchen features sleek matt‑finish handleless units with soft‑close doors and drawers, paired with Caesarstone worktops complete with matching upstands and a splashback behind the hob. Cooking is effortless with an induction hob—complete with an integrated extractor, alongside an integrated single oven, combi oven/microwave, fridge/freezer, dishwasher and cooker hood. 
  • A separate family room offers versatile additional living space, perfect as a cosy TV lounge or peaceful retreat, with patio doors opening onto the garden and allowing the household to relax or entertain in different areas of the home.
  • Separate utility room with freestanding washing machine and condenser dryer
  • Stay connected with TV, BT, and data points thoughtfully placed throughout the home, with wiring ready for your own high-speed broadband to suit your modern lifestyle.
  • Fitted with an air source heat pump, delivering energy-efficient, cost-effective heating
  • Enjoy the comfort of underfloor heating across the ground floor 
  • BT Openreach and Hyperoptic cabling are installed, providing a superfast broadband connection.

Read More

Live Where Life Flourishes
Become part of a lively, award-winning neighbourhood at Marleigh Park, where expansive green spaces, on-site amenities, and a strong sense of community come together to create a vibrant, welcoming lifestyle. Embrace an active, outdoor lifestyle across 57 acres of beautiful greenery and play areas the equivalent of 44 football pitches, perfect for exploring, playing, and unwinding.

  • Live seamlessly with the Co‑op on-site, perfect for quick stops for dinner prep and everyday essentials.
  • Marleigh Community Centre on-site, offering social, recreational, and wellbeing activities moments from home.
  • R3FORM Pilates, offering wellness and fitness classes just steps from your door—perfect for a healthy, active lifestyle.
  • Experience the charm of our on-site Italian restaurant and deli Salento, where authentic flavors meet warm hospitality in an inviting, relaxed setting. 
  • Coming soon — PadelStars courts, high‑quality football pitches and allotments, adding exciting new sports, outdoor fun and green‑fingered living right within the community.

Seamless Travel & Connections
Life at Marleigh Park keeps you seamlessly connected, whether commuting, travelling for work, or enjoying a weekend escape. 

  • The nearby Park and Ride facilities provide a hassle-free way to reach the heart of Cambridge, helping you avoid the city centre traffic while keeping your commute stress-free.
  • Reach Cambridge Station in 20 minutes and enjoy fast, convenient access to King’s Cross and London Liverpool Street.
  • The M11, just a few miles away, gives you flexible routes across London, Cambridge and beyond
  • London Stansted Airport, approximately 40 minutes drive away, makes national and international travel simple 

Discover your Future Home
Arrange a visit with our sales team and tour our show homes at the award-winning Marleigh Park.

Sales Suite: Newmarket Road, Cambridge, Cambridgeshire, CB5 8AA
Opening Times: Open daily, 10:00–17:30

*Photography represents a Marleigh Park show home; layouts may vary. Travel times taken from Google Maps. 

Tenure:
Freehold
Service charge:
£297.21
Council tax band:
TBC

Features

  • Three storey semi-detached home

  • Impressive open-plan kitchen/dining/living room with skylights

  • Matt finish handless units and Caesarstone worktops to kitchen

  • Bi-fold kitchen doors leading to garden

  • Separate family room with triple aspect views

  • Ground floor utility room

  • Four double bedrooms

  • Fitted wardrobes and en-suite to principal bedroom

  • En-suite to bedroom two

Tenure:
Freehold
Service charge:
£297.21
:
Council tax band:
TBC
:
Floor Plans
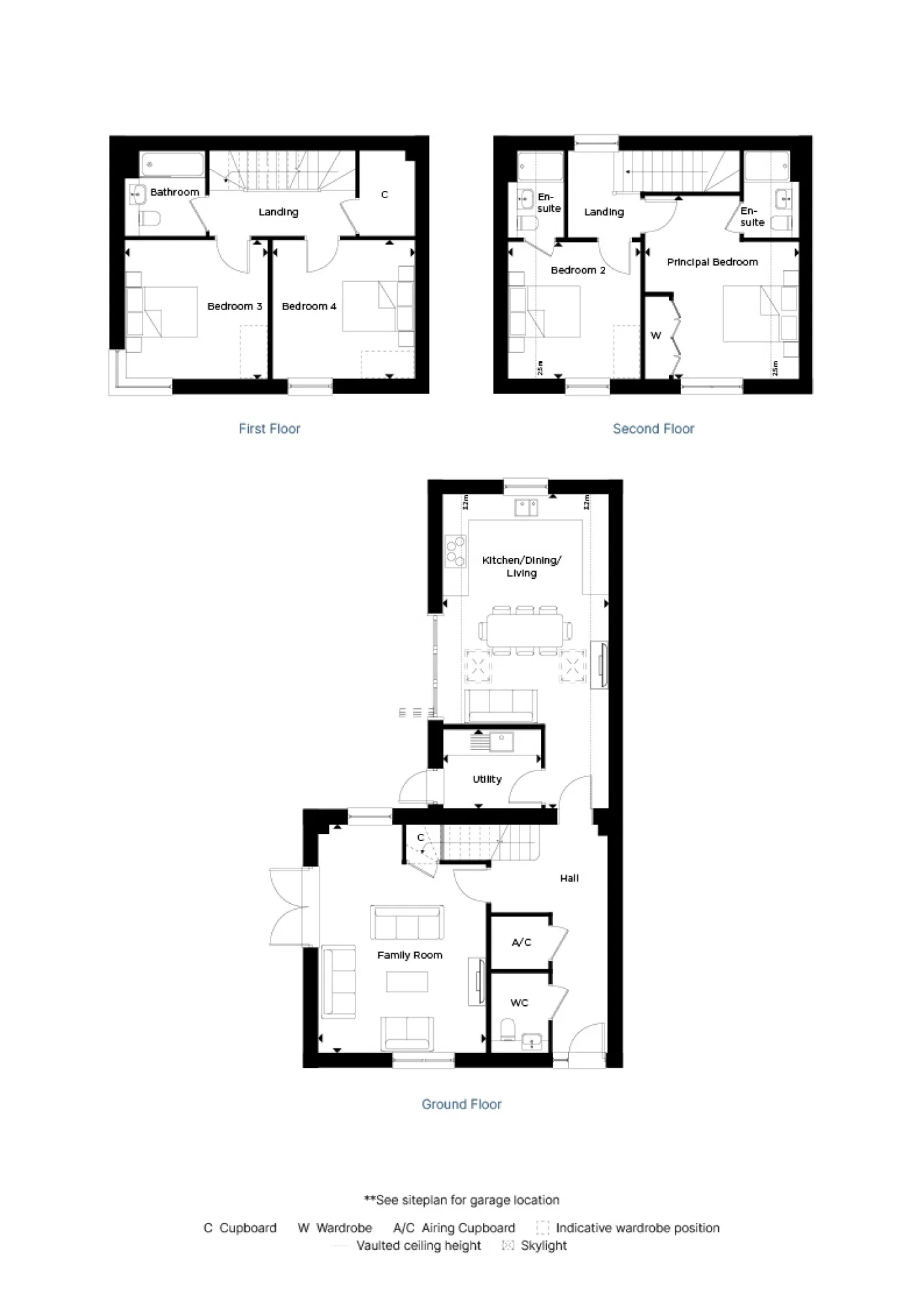
The Beech, Number 448 Ground Floor
Kitchen/Dining/Living
4.15m
 x 
7.90m
13'7" x 25'11"
Family Room
4.20m
 x 
5.75m
13'9" x 18'10"
Utility
2.45m
 x 
1.95m
8'0" x 6'5"
Bedroom 3
3.55m
 x 
3.50m
11'8" x 11'6"
Bedroom 4
3.60m
 x 
3.50m
11'10" x 11'6"
Principal Bedroom
3.85m
 x 
4.60m
12'8" x 15'1"
Bedroom 2
3.30m
 x 
3.45m
10'10" x 11'4"
Image
52639_HLL_Marleigh_Kingsley_View_Floorplans_The_Beech.jpg
Development Plan
Image
Marleigh Park Development Plan
Site Plan
Specification

Kitchen & Utility

  • Matt finish handleless kitchen units with soft close to doors and drawers
  • Worktop with matching upstand and splashback behind hob
  • Induction hob
  • Integrated single oven
  • Integrated microwave
  • Integrated dishwasher
  • Integrated fridge/freezer
  • Integrated cooker hood or ceiling hood to duplex apartments
  • Stainless steel undermounted sink with contemporary brushed steel mixer tap
  • LED feature lighting to wall units
  • Washer/dryer (freestanding in hallway cupboard

Kitchen designs and layouts vary; please speak to our Sales Executives for further information

Image
Marleigh park, apartment kitchen
Image
Image
Marleigh oven
Image
Marleigh Kitchen

Bathroom & En-Suite

Bathroom 

  • Bath with shower over and glass screen
  • Feature framed mirror with shelf (where layout allows)
  • Bath panel to match vanity tops
  • Large format wall and floor tiles
  • Heated chrome towel rail

En-suite

  • Low profile shower tray with glass shower door
  • Framed feature mirror with shelf to match vanity tops (where layout allows)
  • Large format wall and floor tiles
  • Heated chrome towel rail
Image
Marleigh Park, Bathroom
Image
Marleigh Park bathroom spec
Image
Marleigh bathroom
Image
Marleigh Park spec

Heating & Water

  • Underfloor heating throughout each apartment
  • Heated chrome towel rails to bathroom and en-suite
  • Heating via communal air source heat pump
Image
Marleigh Park bathroom spec
Image
Marleigh Park Kitchen tap
Image
Marleigh Park living room
Image
Marleigh Park bedroom

Electrical

  • Downlights to entrance hall, kitchen /dining /living room, bathroom and en-suite
  • Pendant fittings to all bedrooms
  • LED feature lighting to wall units in kitchen
  • Shaver sockets to bathroom and en-suite
  • TV and data points to selected locations
  • Fibre connection to all properties for customer’s choice of broadband provider
  • Pre-wired for customer’s own Sky Q connection
  • Video entry system to every apartment, linked to main entrance door, where accessed off communal area
  • External lighting to balcony /terrace
  • Hard-wired smoke and heat detectors
  • Sprinkler system to all apartments
  • Spur for customer’s own installation of security alarm panel
Image
Marleigh Park, apartments living room
Image
Marleigh Park kitchen features
Image
Marleigh park, apartment kitchen
Image
Marleigh park features

Finishes

Decorative Finishes

  • Painted front entrance door with multi-point locking system
  • High efficiency double glazed aluminium timber composite windows
  • White painted flush internal doors with contemporary dual finish ironmongery
  • Built-in mirrored wardrobe with sliding doors to principal bedroom
  • Square cut skirting and architrave
  • Walls painted in white emulsion
  • Smooth ceilings in white emulsion

Floor Finishes

  • Amtico flooring to entrance hall and kitchen /dining /living room
  • Carpet to bedrooms, plus stairs, upper floor hall and study where applicable to duplexes
  • Large format tiles to bathroom and en-suite

External Finishes

  • Porcelain tiles to private balcony /terraces
Image
Marleigh Park - The Fens - Lifestyle
Image
Marleigh Park, Bathroom
Image
Marleigh Park fitted wardrobe
Image
Marleigh park hallway

Communal Areas

  • Fob controlled access system to entrance lobby
  • Lift access to all floors
  • Cycle and bin storage space
  • Letterboxes provided for all apartment
Image
Marleigh Park Apartments
Image
Marleigh Park - Lifestyle Podium
Image
Marleigh Park - Jubilee Square
Image
Marleigh Park - The Franklin Building

Additional information

Parking

  • Parking available in the undercroft car park. Please speak to our Sales Executives for further information. • Provision for future electric car charging points to all spaces

General

  • 10 year NHBC warranty
  • 250 year lease
  • A service charge will be payable for the maintenance of the shared facilities and communal areas
Image
Marleigh Park - Lifestyle Podium
Image
Marleigh Park, apartments living room
Image
Marleigh Park - The Fens
Image
Marleigh park, apartment kitchen
Buying Calculators
Mortgage calculator

By putting in a few simple details we'll work out how much your monthly mortgage repayments could be.*

  • £

Your mortgage calculation

Deposit
Mortgage Required
Monthly Payments

*Hill do not provide mortgage advice, but our sales consultants will happily point you in the direction of an independent mortgage advisor who can help find the best deal for you.

Landscape Logo

Marleigh Park Sales Suite

Marleigh Park Sales Suite
Newmarket Road
Cambridge
Cambridgeshire
CB5 8AA
Get directions
Contact our Sales Team
01223 827 241
Opening hours
Sunday: 10:00-17:30
Monday: 10:00-17:30
Tuesday: 10:00-17:30
Wednesday: 10:00-17:30
Thursday: 10:00-17:30
Friday: 10:00-17:30
Saturday: 10:00-17:30

Marleigh Park

Marleigh Park

Developments

    Locations

      Image
      HBF Logo 2026
      Image
      Hill - What House - Three Times Housebuilder Of The Year
      Image
      CIBSE 2020
      Image
      NHBC Awards 2020