The Kingsley, Number 11

, Wokingham, RG45 6WP Directions and opening times

  • £680,000
  • 3
     bedrooms
  • 2
     bathrooms

Elmstead The Kingsley, Number 11

Jump to:

Development Jump Navigation

Image
The Kingsley_Elmstead

Created for Living

The Kingsley, Number 11
Elmstead, Wokingham

The Kingsley, Number 11 is a spacious three-bedroom, three-storey semi-detached home at Elmstead, featuring an open-plan kitchen and dining area with West-facing garden access, a dual-aspect living room, and a second-floor study. With energy-efficient features, integrated appliances, and driveway parking with EV charging, it offers a modern, connected lifestyle in a peaceful Wokingham setting.

Property Highlights:

  • This home spans three floors, offering spacious living with well-defined areas for relaxing, entertaining, and private, separate zones throughout.
  • Open-plan kitchen / dining / living area with underfloor heating and patio doors opening to the West-Facing garden for seamlessly indoor and outdoor living and the perfect entertaining space.
  • Three spacious double bedrooms, the principal bedroom features a stylish en-suite and dressing area, offering a tranquil and private space to unwind at the end of the day.
  • Enjoy an energy-efficient lifestyle with an air source heat pump and hot water storage tank, combining sustainable living with modern comfort and convenience.

Read More

A Lifestyle at Elmstead

Nestled within a peaceful forest setting along Nine Mile Ride in Wokingham, Elmstead is a place where village charm meets modern convenience. Here, contemporary homes are surrounded by scenic countryside and woodland, creating a welcoming community that balances tranquil living with everyday practicality. With local shops, cafés and green spaces nearby, Elmstead offers a lifestyle where everything you need is within easy reach.

  • Wokingham Town Centre, a 10 minute drive away, offering boutique shopping, vibrant restaurants and the charm of a historic market town.
  • Local pubs and eateries nearby, perfect for relaxed dining, weekend lunches and catching up with friends.
  • Community halls and local venues host clubs, fitness classes and seasonal markets, bringing neighbours together throughout the year.
  • Surrounding woodland and green spaces provide peaceful walks, fresh air and a natural escape just moments from home.

Seamless Travel & Connections

Living at Elmstead keeps you effortlessly connected, whether commuting to work, exploring Berkshire, or heading into London for business or leisure.

  • Wokingham station offers regular rail services, with journeys to London Paddington taking around 40 minutes, alongside convenient connections to Reading, Guildford and other key destinations across the South East.
  • For those travelling by car, nearby routes including the A321 and A329(M) provide straightforward access to Reading, Bracknell and surrounding towns, while the M4 and M3 motorways connect you easily to London, the West Country and beyond.
  • Frequent flyers will appreciate the proximity to several major airports. London Heathrow Airport is around a 30-minute drive away, with London Gatwick reachable in just under an hour and London Stansted in about 1 hour30 minutes.
  • With excellent road, rail and air connections all within easy reach, Elmstead offers a well-connected location designed to make every journey simple and convenient.

Visit Your Future Home

Schedule a visit with our sales team and step inside your dream home at the brand new development Elmstead. 

Sales Suite: 1 Bream Way, Wokingham, RG45 6WP
Opening Times: Open daily 10:00 - 17:30

Tenure:
Freehold
Council tax band:
TBC

Features

  • Three bedroom semi-detached three-storey home

  • Open plan kitchen/dining area with L-shaped kitchen and integrated appliances

  • Patio doors leading onto the West-facing garden

  • Dual-aspect separate living room

  • Three spacious double bedrooms

  • Principal includes dressing area with wardrobes. en-suite and Juliette balcony

  • Second floor study

  • TV, BT, and data points with Openreach and Hyperoptic fibre

  • Driveway parking for two cars and EV charging

Tenure:
Freehold
:
:
Council tax band:
TBC
:
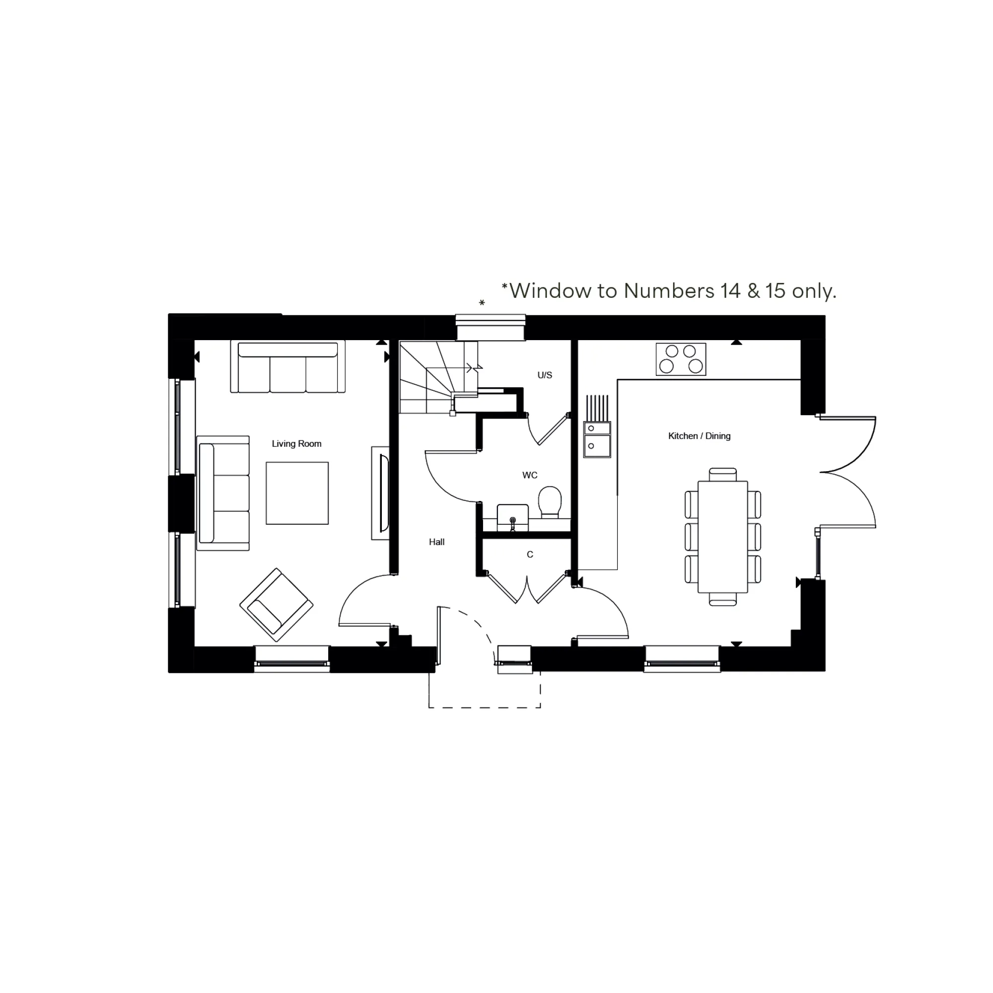
Floor Plans
The Kingsley, Number 11 Ground Floor
Kitchen / Dining Area
5.00m
 x 
3.60m
16'5" x 11'10"
Living Room
5.00m
 x 
3.20m
16'5" x 10'6"
Image
Elmstead-The-Kingsley-00-ground-floor.png
The Kingsley, Number 11 First Floor
Principal Bedroom
5.00m
 x 
5.00m
16'5" x 16'5"
Bedroom 2
5.00m
 x 
3.20m
16'5" x 10'6"
Image
Elmstead-The-Kingsley-01-first-floor.png
The Kingsley, Number 11 Second Floor
Bedroom 3
4.20m
 x 
3.20m
13'9" x 10'6"
Study
3.90m
 x 
2.70m
12'10" x 8'10"
Image
Elmstead-The-Kingsley-02-second-floor.png
Site Plan
  • Available
Specification

Kitchen

  • Matt finish handleless units with soft close to doors and drawer
  • Caesarstone worktops with matching upstand and splashback behind hob
  • Induction hob
  • Integrated single oven
  • Integrated microwave
  • Integrated fridge/freezer
  • Integrated dishwasher
  • Integrated cooker hood
  • Stainless steel under mounted sink with contemporary brushed steel mixer tap
  • LED feature lighting to wall units
  • Integrated washer/dryer
Image
Elmstead - The Langstone Kitchen
Image
Marleigh Park, Sycamore show home, Induction Hob
Image
Elmstead - The Bookham Kitchen
Image
Hollymead Square - Oven

Bathroom & en-suite

Bathrooms

  • Bath with shower over and glass screen
  • Bath panel to match vanity top
  • Framed feature mirror with shelf
  • Large format wall and floor tiles
  • Heated chrome towel rail

En-Suite

  • Low profile shower tray with glass shower door
  • Framed feature mirror with shelf to match vanity top
  • Large format wall and floor tiles
  • Heated chrome towel rail
Image
Elmstead - Langstone 4 Bed - Family Bathroom.jpg
Image
Marleigh Park, 4 bedroom show home, Bathroom Sink
Image
Marleigh Park, The Oak, Hand Rail
Image
25_04_28_Hill_MarleighPark_Plot413_025 (1).jpg

Heating & Water

  • Underfloor heating to ground floor, radiators to upper floor
  • Heated chrome towel rails to bathroom and en-suite
  • Air source heat pump
  • Hot water storage tank
Image
Elmstead - The Langstone Living Area
Image
Marleigh Park, The Oak, Hand Rail
Image
Elmstead - The Langstone Bed 3
Image
Elmstead - The Langstone Study

Electrical

  • Downlights to entrance hall, kitchen, open plan kitchen/dining/living room, bathroom, en-suite and WC
  • Pendant fittings to separate living/family room, landings and all bedrooms
  • LED feature lighting to wall units in kitchen
  • Shaver sockets to bathroom and en-suite
  • TV, BT and data points to selected locations
  • Openreach & Hyperoptic fibre connection to all properties for customer’s choice of broadband provider
  • External lighting to front and rear of property
  • External power socket to rear
  • Light and power to garage (where applicable)
  • Hard-wired smoke and heat detectors
  • Spur for customer’s own installation of security alarm panel
  • Electric car charging point
Image
Elmstead - Bookham 3 Bed - Living (4).jpg
Image
Elmstead - Bookham 3 Bed - Kitchen (3).jpg
Image
Elmstead - Bookham 3 Bed - Principal (2).jpg
Image
Elmstead - Bookham 3 Bed - Bed 2.jpg

Finishes

Internal Finishes

  • Timber staircase with carpeted treads and risers
  • White painted flush internal doors with contemporary dual finish ironmongery
  • Built in mirrored wardrobe with sliding doors to principal bedroom
  • Square cut skirting and architrave
  • Walls painted in white emulsion
  • Smooth ceilings in white emulsion
  • Amtico flooring throughout ground floor
  • Carpet to stairs, landings and bedrooms
  • Large format tiles to bathroom and en-suite

External Finishes

  • Landscaping to front garden
  • Turf to rear garden
  • Paved patios
  • External tap
  • Garden shed where no garage present, as shown on siteplan layout

 

Image
Elmstead - Bookham 3 Bed - Garden (1)1 (1).jpg
Image
Elmstead - Langstone 4 Bed - Kitchen (2).jpg
Image
The Langstone Show Home_Edit-28.jpg
Image
Elmstead - Bookham 3 Bed - Principal (3).jpg

Construction

  • Traditionally constructed brick and block outer walls, cavity filled with insulation
  • Concrete floor to ground floors with timber to upper floors
  • Exterior treatments are a combination of buff or red facing bricks with grey or red roof tiles
  • uPVC rain-water goods
  • PV panels to all properties
Image
Elmstead - Langstone 4 Bed - External (2).jpg
Image
Elmstead - Langstone 4 Bed - External (3).jpg
Image
Elmstead Development_AE (4).jpg
Image
Elmstead - Bookham 3 Bed - Externaljpg.jpg
Buying Calculators
Mortgage calculator

By putting in a few simple details we'll work out how much your monthly mortgage repayments could be.*

  • £

Your mortgage calculation

Deposit
Mortgage Required
Monthly Payments

*Hill do not provide mortgage advice, but our sales consultants will happily point you in the direction of an independent mortgage advisor who can help find the best deal for you.

Stamp Duty calculator

Our calculator provides a guide for how much Stamp Duty you will need to pay when purchasing your new property.*

  • £

Your Stamp Duty calculation

You pay % up to
You pay % up to
You pay % up to
You pay % up to £1,500,000
You pay % over £1,500,000
Total you pay

*First time buyers will not pay any stamp duty on property purchases below £300,000 with further relief available for transactions up to £500,000. Any property purchased over £500,000 by a first time buyer will not be eligible for SDLT relief and standard rates will apply. This calculator is provided as a guide only on how much Stamp Duty Land Tax (SDLT) you will need to pay in England and Northern Ireland. It assumes that you are a UK resident and the property is freehold and is for primary residential purposes. For more information, visit www.gov.uk/stamp-duty-land-tax.

Landscape Logo

Address

1 Bream Way
Wokingham
RG45 6WP
Register your interest
01344207049
Opening hours
Sunday: 10:00-17:30
Monday: 10:00-17:30
Tuesday: 10:00-17:30
Wednesday: 10:00-17:30
Thursday: 10:00-17:30
Friday: 10:00-17:30
Saturday: 10:00-17:30

Elmstead

Elmstead

Developments

    Locations

      Image
      HBF Logo 2026
      Image
      Hill - What House - Three Times Housebuilder Of The Year
      Image
      CIBSE 2020
      Image
      NHBC Awards 2020