House 5 The Lewis
Cranbrook, Kent, TN17 3LQ Directions and opening times
- £524,950
-
3bedrooms
-
2bathrooms
Hartley Acres House 5 - The Lewis
- Price:
£524,950
- Bedrooms:
3
- Bathrooms:
2
- Directions and opening times

The Lewis External
Created for Living
A stylish address for today. A home to love forever.
The Lewis is a charming 3 bedroom semi-detached house nestled in the picturesque town of Cranbrook, Kent. This delightful residence offers a perfect blend of modern comfort and natural beauty.
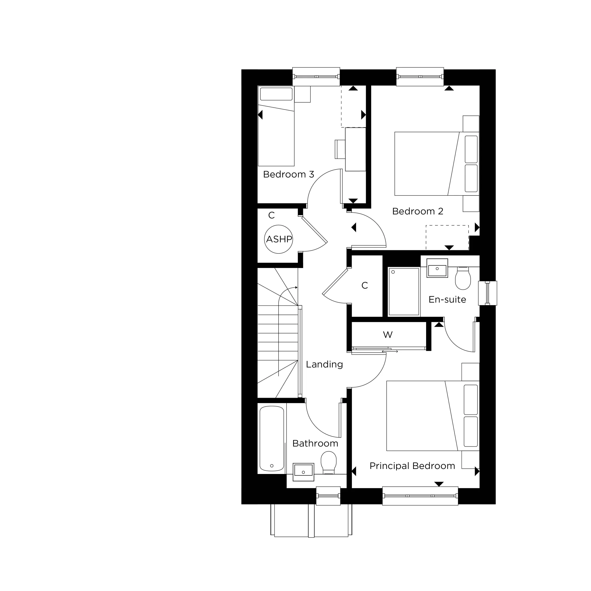
Plot 5 has a well-designed, inviting layout which encompasses 1,061 sq ft of thoughtfully crafted living spaces, featuring two generously sized double bedrooms, providing ample room for relaxation and personal retreat. With two bathrooms, including an ensuite, convenience is at the forefront of this home.
The Lewis boasts a stylish and functional kitchen, equipped with modern appliances and ample storage space, making it a culinary haven for those who enjoy cooking and entertaining. The open-plan living and dining area create a seamless flow, perfect for both casual family gatherings and formal entertaining.
The kitchen has been specified with a timeless design, featuring matt finish shaker-style units with soft close doors and drawers finished with a Caesarstone worktop and fully integrated appliances. You'll also find a stylish WC and under stairs cupboard, the ideal storage to keep your home tidy along with underfloor heating and a choice of flooring.
One of the highlights of The Lewis is the convenient carport, providing shelter for your vehicles and enhancing the overall convenience of daily living. The commitment to practicality extends to the well-maintained garden, offering a private outdoor oasis where you can unwind and enjoy the tranquility of the surroundings.
Upstairs, there are three double bedrooms with plush carpet underfoot and two bathrooms each offered with a choice of large format tiles, allowing you to personalise to match your interior design scheme.
You'll also find a contemporary family bathroom complete with modern sanitaryware, matching bath panel and vanity top to give a touch of elegance and style.
Situated in a beautiful development surrounded by green open spaces, The Lewis is part of a community that values nature and a high quality of life. The lush landscapes and manicured gardens create a serene backdrop, enhancing the sense of peace and tranquility.
Cranbrook, with its rich history and charming atmosphere, provides a delightful setting for The Lewis. Enjoy the convenience of nearby amenities, schools, and recreational facilities, all within easy reach. The town's friendly community and excellent transport links contribute to the overall appeal of this location.
Discover the perfect combination of comfort, convenience, and natural beauty at The Lewis in Cranbrook, Kent. Your new home awaits, offering a lifestyle that embraces modern living while surrounded by the serenity of green open spaces.
Overview of key information
Please note council tax bands are often not released by the local authority until the property is complete, further information will be provided once available.
- Tenure: Freehold
- Council Tax Band: TBC
- Estate Charge: £325
- Estate Charge Review Period: Annual
External CGI is of The Lewis housetype, Plot 5. Internal CGIs are of standard housetype, individual layout and specification may vary.
Features
Impressive open-plan kitchen/living/dining space
Fully integrated kitchen
Principal bedroom with elegant en-suite and fitted wardrobe
Large private landscaped rear garden
Parking for two cars with car port
10 Year NHBC Warranty
Approx. 1,061 sq ft of flexible living space
- :
- :
- :
- :
- :


Kitchen
2 & 3 bedroom homes
- Matt finish shaker-style kitchen units with soft close to doors and drawers
- Caesarstone worktops with matching upstand and splashback behind hob
- Induction hob
- Integrated single oven
- Integrated microwave
- Integrated fridge/freezer
- Integrated dishwasher
- Integrated washer/dryer or freestanding in hallway cupboard to The Pendle
- Integrated cooker hood
- Stainless steel under mounted sink with contemporary brushed steel mixer tap
- LED feature lighting to wall units
4 & 5 bedrooms homes
- Matt finish shaker-style units with soft close doors and drawers
- Caesarstone worktop with matching upstand and splashback behind hob
- Induction hob
- Integrated single oven
- Integrated compact combi oven/microwave
- Integrated warming drawer*
- Integrated wine cooler*
- Integrated fridge/freezer
- Separate fridge & freezer*
- Integrated dishwasher
- Integrated cooker hood
- Stainless steel under mounted sink with contemporary brushed steel mixer tap
- Quooker hot/cold/boiling tap*
- LED feature lighting to wall units
*Upgraded specification to plots 108–117.




Bathroom & En-suite
2 & 3 bedroom homes
En-suite
- Low profile shower tray with glass shower screen/door
- Framed feature mirror with shelf to match vanity top (where layout allows)
- Large format wall and floor tiles
- Heated chrome towel rail
Bathroom
- Bath with shower over and glass screen
- Bath panel to match vanity top
- Framed feature mirror with shelf (where layout allows)
- Large format wall and floor tiles
- Heated chrome towel rail
4 & 5 bedroom homes
En-suite
- Low profile shower tray with glass shower door
- Feature mirror cabinet with LED lighting (to principal en suite and second en-suite*, where layout allows)
- Recessed shower shelf
- Large format wall and floor tiles
- Heated chrome towel rail
Bathroom
- Bath with shower over and glass shower screen or separate shower enclosure where applicable
- Low profile shower tray with glass shower door where applicable
- Bath panel to match vanity top
- Feature mirror cabinet with LED lighting (where layout allows)
- Recessed shower shelf
- Large format wall and floor tiles
- Heated chrome towel rail




Heating & Water
2, 3, 4 & 5 bedroom homes
- Underfloor heating to ground floor, radiators to upper floor (The Furth and The Pendle have underfloor
heating* throughout) - Heated chrome towel rails to bathroom and en suites
- Air source heat pump
- Hot water storage tank




Electrical
2 & 3 bedroom homes
- Downlights to entrance hall, open-plan kitchen/living/dining area, kitchen/breakfast/family area, bathroom, en suite and WC
- Pendant fittings to separate living room, landing and all bedrooms
- LED feature lighting to wall units in kitchen
- Shaver sockets to bathroom and en suite
- TV, BT and data points to selected locations
- BT & Hyperoptic fibre connection to all properties for customer's choice of broadband provider
- Pre-wired for customer's own Sky Q connection
- External lighting to front and rear of property
4 & 5 bedroom homes
- Downlights to entrance hall, kitchen, open-plan kitchen/ dining/family, bathroom, en suites, WC, utility room and principal bedroom
- Pendant fittings to separate living room, dining room, study, landing and other bedrooms
- LED feature lighting to wall units in kitchen
- Selected sockets with integrated USB port
- Shaver sockets to bathroom and en suites
- TV, BT and data points to selected locations




Decorative Finishes
2 & 3 bedroom homes
- Timber staircase with carpeted treads and risers
- White painted single panel moulded internal doors with contemporary dual finish ironmongery
- Built-in mirrored wardrobe with sliding doors to principal bedroom
- Square cut skirting and architrave
- Walls painted in white emulsion
- Smooth ceilings in white emulsion
- Amtico flooring throughout ground floor and to kitchen/ living/dining room to The Furth and The Pendle
- Carpet to stairs, landing and bedrooms
- Large format tiles to bathroom and en-suite
4 & 5 bedroom homes
- Timber staircase with carpeted treads and risers
- White painted single panel moulded internal doors with contemporary dual finish ironmongery
- Built in wardrobe with LED lighting to principal bedroom
- Built in wardrobe to second bedroom in 5 bedroom homes*
- Square cut skirting and architrave
- Walls painted in white emulsion
- Smooth ceilings in white emulsion
- Amtico flooring throughout ground floor
- Engineered timber flooring throughout g round floor*
- Carpet to stairs, landing and bedrooms
- Large format tiles to bathroom and en suites
*Upgraded specification to plots 108–117.




Additional Information
- 10-year NHBC warranty
- Estate Charge applies, speak to our Sales Executives for information
A Management Company has been formed at Hartley Acres and will be responsible for the management and maintenance of the shared services and external communal areas of the of the development, including the green open spaces, play areas, un-adopted estate roads and footpaths. All homeowners will automatically be made members of the Management Company when they purchase a home at Hartley Acres. A managing agent has been appointed on behalf of the Management Company and will take on the day to day management and maintenance responsibilities.




Ways to Buy
Similar Properties

Get in touch
A new collection of 2, 3, 4 & 5 bedroom homes in Cranbrook, Kent.