The Brook, Number 71

Cranbrook, Kent, TN17 3LQ Directions and opening times

  • £799,000
  • 4
     bedrooms
  • 3
     bathrooms

Hartley Acres The Brook, Number 71

Jump to:

Development Jump Navigation

Image
vb2352542_House_Type_4B8P-T3_Brook_-_Plot_42_1600x1066.jpg

Created for Living

The Brook, Number 71
Hartley Acres, Cranbrook

The Brook, Number 71 celebrates the charm of a classic Kentish exterior while offering a spacious, detached family home with four double bedrooms, two en-suites, and a large open-plan kitchen/dining/living area. Complete with a separate family room, utility, garage, and EV-ready driveway, it blends timeless character with modern convenience.

Property Highlights:

  • Spanning approximately 9.10m x 3.70m, this dual-aspect open-plan kitchen/dining/living area features a sleek U-shaped kitchen with integrated appliances, creating a bright, sociable space perfect for entertaining, family gatherings, or relaxed evenings at home.
  • Four spacious double bedrooms, with the principal and second bedrooms each benefiting from private en-suites, while the principal bedroom also features full-width fitted wardrobes, combining luxury, style, and practicality.
  • Generous private rear garden,easily accessible through bi-folding doors from the kitchen/dining/ living area, providing an ideal space for outdoor dining, play, or relaxation.
  • Energy-efficient air source heat pump providing sustainable heating and hot water, helping to reduce running costs while adding a modern, eco-friendly touch to the home.
  • A separate dining room offering a versatile space that can be used for relaxed family meals, a playroom, home office, or a quiet retreat, adapting effortlessly to your lifestyle needs.

Read more

A Lifestyle at Hartley Acres

Hartley Acres is a picturesque community set in the heart of Cranbrook, where natural beauty meets everyday convenience. Blending the charm of a historic Wealden town with excellent local amenities, life at Hartley Acres offers a relaxed village atmosphere while keeping everything you need close to home.

  • Daily essentials are close at hand, with the Co-op supermarket and the renowned Cranbrook Bakery both within 2–3 minutes by car or a short stroll of 8–10 minutes on foot.
  • St Dunstan’s Church, approximately 3 minutes by car, a historic landmark at the heart of Cranbrook.
  • The Weald Sports Centre, 3 minutes away, with fitness, sports, and leisure facilities for all the family.
  • Cranbrook High Street, 2–3 minutes away, lined with period buildings, independent shops, cafés, and restaurants, perfect for casual outings or special occasions.
  • Monthly Farmers’ Market, just a short drive, bringing local growers and producers from across the Weald.
  • Perfect for families, with outstanding local schools nearby, making school runs stress-free and convenient.

Seamless Travel & Connections

Living at Hartley Acres means staying effortlessly connected, whether you’re commuting, travelling for business, or enjoying the weekend.

  • Directly outside Hartley Acres, the bus takes you to Staplehurst Station in 10 minutes, making work, countryside adventures, or London trips effortless.
  • Staplehurst station, with a car park, is a short drive away, quickly connecting you to the Capital and the Coast.
  • The M20 and major A-roads are within easy reach, while the local cycle routes connect you to the local hotspots. 
  • London Heathrow Airport, approximately 1.5 hours drive away, makes national and international travel simple and stress-free

Visit Your Future Home

Arrange a visit with our sales team and tour our show homes at the award-winning Hartley Acres

Sales Suite: Hartley Road, Cranbrook, TN17 3LQ
Opening Times: Open daily, 10:00 - 17:30

Tenure:
Freehold
Service charge:
£325.00
Council tax band:
TBC

Features

  • Detached Home, ready to move into

  • Four double bedrooms, including en-suites in principal and bedroom two

  • Large open plan kitchen/dining/living room

  • Utility room for added convenience

  • Separate family room

  • Garage and Driveway with EV Charger included

Tenure:
Freehold
Service charge:
£325.00
:
Council tax band:
TBC
:
Floor Plans
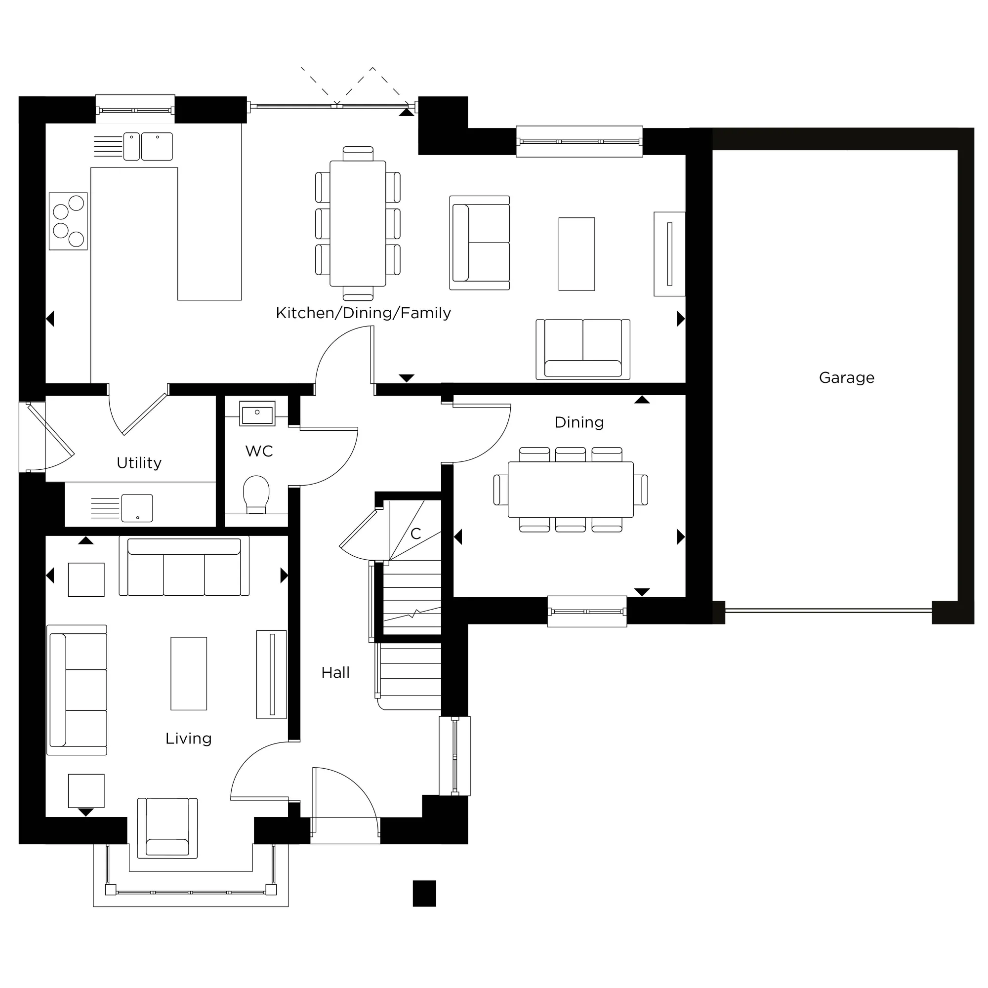
The Brook, Number 71 Ground Floor
Kitchen / Dining / Family
9.10m
 x 
3.70m
29'10" x 12'2"
Dining
3.30m
 x 
2.85m
10'10" x 9'4"
Living
3.45m
 x 
4.00m
11'4" x 13'1"
Image
The Brook, Number 71 Ground Floor
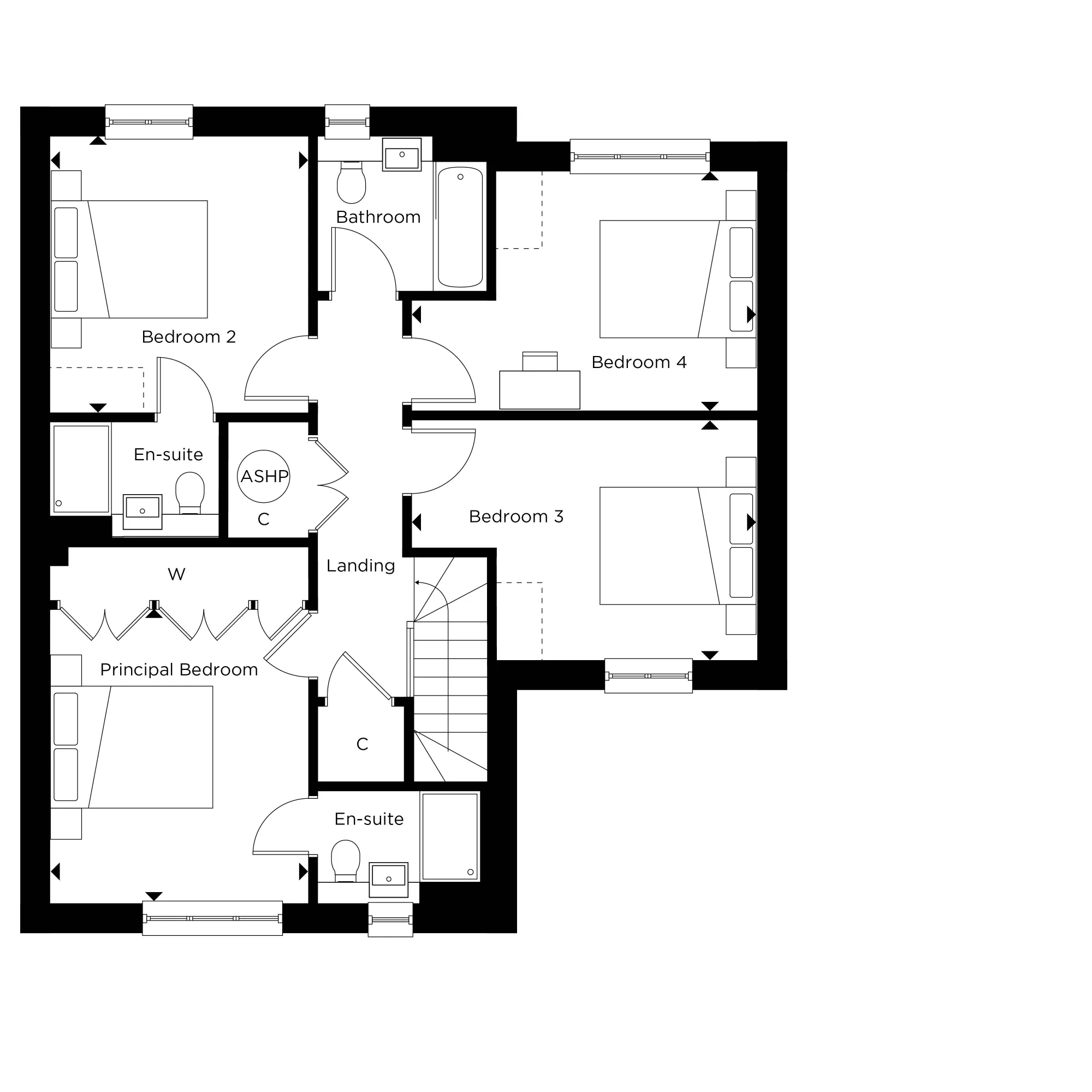
The Brook, Number 71 First Floor
Principal Bedroom
3.35m
 x 
3.85m
11'0" x 12'8"
Bedroom 2
3.30m
 x 
3.55m
10'10" x 11'8"
Bedroom 3
4.45m
 x 
3.10m
14'7" x 10'2"
Bedroom 4
4.45m
 x 
3.10m
14'7" x 10'2"
Image
The Brook, Number 71 First Floor
Site Plan
  • Available
  • Reserved
  • Sold
Specifications

Kitchen & Utility

Kitchen

  • Matt finish shaker-style units with soft close doors and drawers
  • Caesarstone worktop with matching upstand and splashback behind hob
  • Induction hob
  • Integrated single oven
  • Integrated compact combi oven/microwave
  • Integrated warming drawer*
  • Integrated wine cooler*
  • Integrated fridge/freezer
  • Separate fridge & freezer*
  • Integrated dishwasher
  • Integrated cooker hood
  • Stainless steel under mounted sink with contemporary brushed steel mixer tap
  • Quooker hot/cold/boiling tap*
  • LED feature lighting to wall units 
     

Utility Room

  • Matt finish shaker-style units with soft close doors
  • Caesarstone worktops with matching upstand
  • Stainless steel under mounted sink with contemporary brushed steel mixer tap
  • Freestanding washing machine
  • Freestanding condenser dryer 

*Upgraded specification to plots 108–117. Kitchen and utility designs and layouts vary; please speak to our Sales Executives for further information 

Image
Millside Grange
Image
Millside Grange
Image
Millside Grange
Image
Millside Grange

Bathroom & En-suite

Bathroom

  • Bath with shower over and glass shower screen or separate shower enclosure where applicable
  • Low profile shower tray with glass shower door where applicable
  • Bath panel to match vanity top
  • Feature mirror cabinet with LED lighting (where layout allows)
  • Recessed shower shelf
  • Large format wall and floor tiles
  • Heated chrome towel rail 

En-suite

  • Low profile shower tray with glass shower door
  • Feature mirror cabinet with LED lighting (to principal en suite and second en-suite*, where layout allows)
  • Recessed shower shelf
  • Large format wall and floor tiles
  • Heated chrome towel rail 
Image
Millside Grange
Image
Millside Grange
Image
Millside Grange
Image
Millside Grange

Heating & Water

  • Underfloor heating to ground floor, radiators to upper floor
  • Heated chrome towel rails to bathroom and en suites
  • Air source heat pump
  • Hot water storage tank 
Image
Millside Grange
Image
Millside Grange
Image
Millside Grange
Image
Millside Grange

Electrical

  • Downlights to entrance hall, kitchen, open-plan kitchen/ dining/family, bathroom, en suites, WC, utility room and principal bedroom
  • Pendant fittings to separate living room, dining room, study,landing and other bedrooms
  • LED feature lighting to wall units in kitchen
  • Selected sockets with integrated USB port
  • Shaver sockets to bathroom and en suites
  • TV, BT and data points to selected locations
  • BT & Hyperoptic fibre connection to all properties for customer's choice of broadband provider
  • Pre-wired for customer’s own Sky Q connection
  • External lighting to front and rear of property
  • Light and power to garage
  • Hard-wired smoke and heat detectors
  • Spur for customer’s own installation of security alarm panel
  • Electric car charging points to all plots
Image
Millside Grange
Image
Millside Grange
Image
Millside Grange
Image
Millside Grange

Finishes

Decorative 

  • Timber staircase with carpeted treads and risers
  • White painted single panel moulded internal doors with contemporary dual finish ironmongery
  • Built in wardrobe with LED lighting to principal bedroom
  • Built in wardrobe to second bedroom in 5 bedroom homes*
  • Square cut skirting and architrave
  • Walls painted in white emulsion
  • Smooth ceilings in white emulsion

Floor

  • Amtico flooring throughout ground floor
  • Engineered timber flooring throughout ground floor*
  • Carpet to stairs, landing and bedrooms
  • Large format tiles to bathroom and en suites 

External

  • Landscaping to front garden
  • Turf to rear garden
  • Paved patios
  • External tap and power socket 
Image
Millside Grange
Image
Millside Grange
Image
Millside Grange
Image
Millside Grange

Additional Information

  • 10 Year NHBC Warranty 
  • Estate Charge applies, speak to our Sales Executives for information 
     
  • A Management Company has been formed at Hartley Acres and will be responsible for the management and maintenance of the shared services and external communal areas of the of the development, including the green open spaces, play areas, un-adopted estate roads and footpaths. All homeowners will automatically be made members of the Management Company when they purchase a home at Hartley Acres. A managing agent has been appointed on behalf of the Management Company and will take on the day to day management and maintenance responsibilities. 
Image
Millside Grange
Image
Millside Grange
Image
Millside Grange
Image
Millside Grange
Buying Calculators
Mortgage calculator

By putting in a few simple details we'll work out how much your monthly mortgage repayments could be.*

  • £

Your mortgage calculation

Deposit
Mortgage Required
Monthly Payments

*Hill do not provide mortgage advice, but our sales consultants will happily point you in the direction of an independent mortgage advisor who can help find the best deal for you.

Stamp Duty calculator

Our calculator provides a guide for how much Stamp Duty you will need to pay when purchasing your new property.*

  • £

Your Stamp Duty calculation

You pay % up to
You pay % up to
You pay % up to
You pay % up to £1,500,000
You pay % over £1,500,000
Total you pay

*First time buyers will not pay any stamp duty on property purchases below £300,000 with further relief available for transactions up to £500,000. Any property purchased over £500,000 by a first time buyer will not be eligible for SDLT relief and standard rates will apply. This calculator is provided as a guide only on how much Stamp Duty Land Tax (SDLT) you will need to pay in England and Northern Ireland. It assumes that you are a UK resident and the property is freehold and is for primary residential purposes. For more information, visit www.gov.uk/stamp-duty-land-tax.

Landscape Logo

Hartley Acres Sales Suite

Hartley Road
Cranbrook
Kent
TN17 3LQ
Get directions
Register your interest
01580 231556
Opening hours
Sunday: 10:00-17:30
Monday: 10:00-17:30
Tuesday: 10:00-17:30
Wednesday: Closed
Thursday: Closed
Friday: 10:00-17:30
Saturday: 10:00-17:30

Hartley Acres

Hartley Acres

Developments

    Locations

      Image
      HBF 5 Star Home Builders Federation 2025
      Image
      Hill - What House - Three Times Housebuilder Of The Year
      Image
      CIBSE 2020
      Image
      NHBC Awards 2020